Zaplanuj Dom prowadzi inwestora od formalności i projektu domu do wyboru wykonawcy i przygotowania startu budowy.

Szybki kontakt

Telefon:
886 887 572
Obsługa:
Cała Polska, 100% online
Umów konsultację
Projekt domu HK114 G2
Projekt domu

HK114 G2

HK114 G2 to projekt domu z poddaszem o powierzchni użytkowej 135,04 m² z układem obejmującym 3 sypialnie, 2 łazienki, garaż na 2 auta i dac…

Z poddaszem Inny dach Garaż na 2 auta Nowoczesny
Opis projektu

Projekt w skrócie.

HK114 G2 to projekt domu z poddaszem o powierzchni użytkowej 135,04 m² z układem obejmującym 3 sypialnie, 2 łazienki, garaż na 2 auta i dachem inny dach. W projekcie przewidziano m.in. pralnia, spiżarnia, kominek, zadaszony taras, antresola.

Kondygnacje
Z poddaszem
Sypialnie
3
Łazienki
2
Powierzchnia użytkowa / netto
135,04 m² / 144,44 m²
Minimalna działka
25,9 m × 23,7 m
Ogrzewanie
powietrzna pompa ciepła, ogrzewanie podłogowe w całym domu, w łazienkach dodatkowo tradycyjne grzejniki typu ręcznikowiec
Wentylacja
mechaniczna z rekuperacją
Pokrycie dachu
tradycyjna więźba dachowa pokryta blachą na rąbek, okna dachowe FAKRO
Cena projektu
7 290 zł
Układ i działka

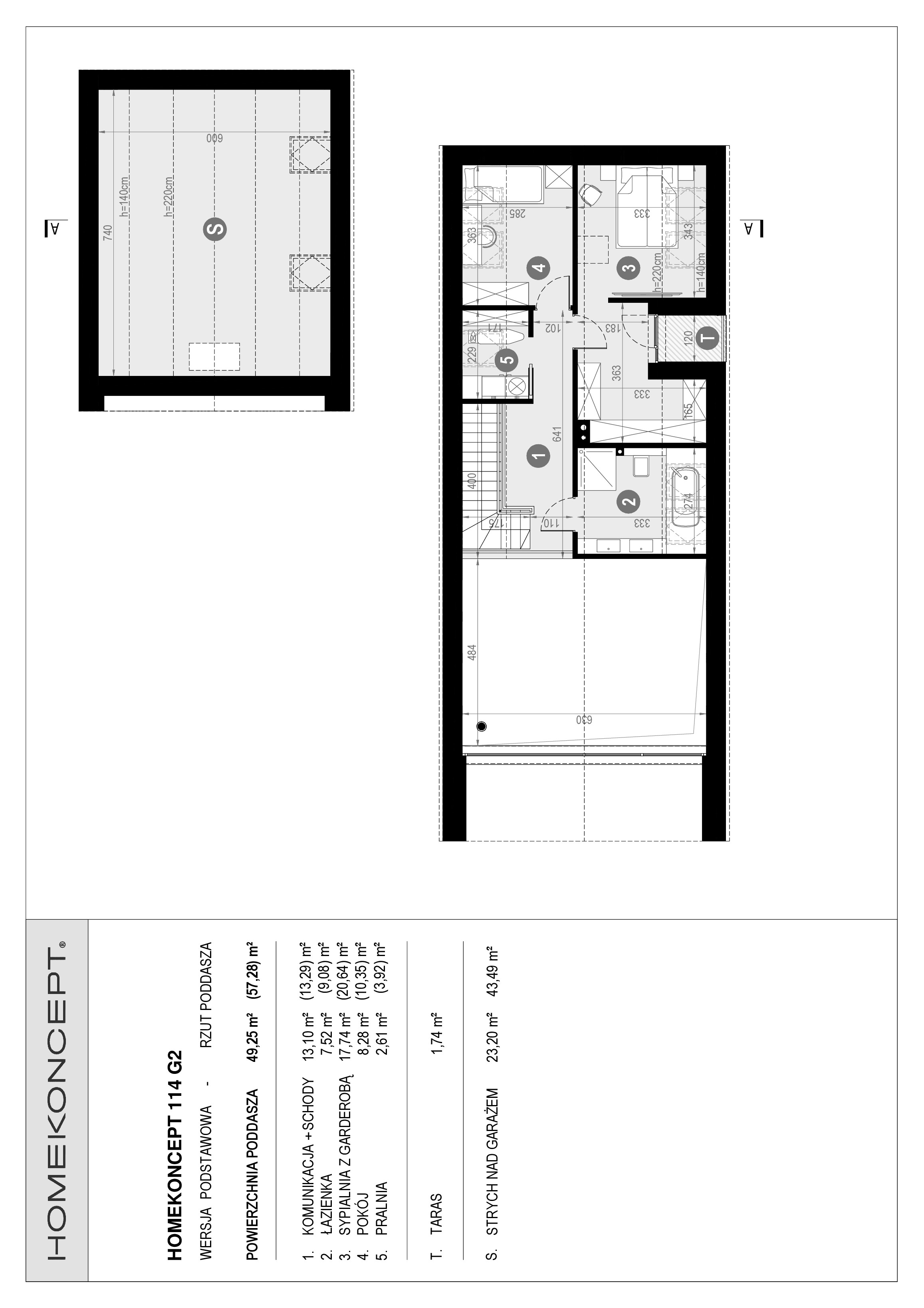
Rzuty i plan działki.

Parter, poddasze i podstawowe dane działki w jednym miejscu.

Parametry projektu

Parametry techniczne.

Najważniejsze dane techniczne, technologia i instalacje.

Powierzchnia i wymiary
Powierzchnia użytkowa / netto
135,04 m² / 144,44 m²
Powierzchnia zabudowy
177,5 m²
Powierzchnia dachu
164,35 m²
Wysokość domu
7,26 m
Kubatura
1 019 m³
Kąt nachylenia dachu
35°
Minimalne wymiary działki
25,9 m × 23,7 m
Szerokość elewacji frontowej
19,9 m
Głębokość budynku
16,7 m
Technologia i konstrukcja
Technologia
murowany
Materiały ścian
dwuwarstwowe - pustak ceramiczny 25 cm + styropian Termo Organika 20 cm/wełna mineralna 18 cm
Pokrycie dachu
tradycyjna więźba dachowa pokryta blachą na rąbek, okna dachowe FAKRO
Konstrukcja stropu
żelbetowy wylewany
Układ kondygnacji
Z poddaszem
Garaż
Garaż na 2 auta
Instalacje i energia
Instalacja grzewcza
powietrzna pompa ciepła, ogrzewanie podłogowe w całym domu, w łazienkach dodatkowo tradycyjne grzejniki typu ręcznikowiec
Instalacja CWU
powietrzna pompa ciepła, ogrzewanie podłogowe w całym domu, w łazienkach dodatkowo tradycyjne grzejniki typu ręcznikowiec
Instalacje dodatkowe
kominek
Rodzaj wentylacji
mechaniczna z rekuperacją
Energia pierwotna (EP)
49,08 kWh/m²/rok
Energia końcowa (EK)
35,29 kWh/m²/rok

Budujemy domy. Solidnie i z myślą o kolejnych dekadach.

Zajmujemy się kompleksową budową domów i odpowiadamy za całość inwestycji — od pierwszych prac na działce aż po odbiór kluczy.

Wizualizacja nowoczesnego domu parterowego z płaskim dachem, dużymi przeszkleniami i uporządkowanym ogrodem

Kompleksowa realizacja od działki po odbiór domu

Prowadzimy cały proces budowy i odpowiadamy za każdy etap inwestycji, tak żebyś nie musiał koordynować osobno ekip, dostaw i decyzji na placu budowy.

Materiały wybierane wspólnie z klientem

Każdą realizację zaczynamy od rozmowy o materiałach. Dobieramy je wspólnie tak, żeby dom był trwały, energooszczędny i komfortowy przez lata. Doradzamy, tłumaczymy i pomagamy podjąć najlepszą decyzję.

Jakość wykonania, terminy i stały kontakt

Twój dom traktujemy jak naszą wizytówkę — dlatego dbamy o jakość wykonania na każdym etapie, dotrzymujemy terminów i jesteśmy z Tobą przez cały czas trwania budowy.

  • Czas trwania 60 minut
  • Dostępność Poniedziałek - sobota
    10:00 - 19:00
  • Forma spotkania Google Meet

Przed spotkaniem nasz doradca skontaktuje się z Tobą, aby potwierdzić termin konsultacji.

Nie chcesz czekać? Napisz do nas na WhatsApp.

Napisz na WhatsApp
Kalendarz

Umów bezpłatną konsultację.

Europe/Warsaw
Ładowanie...
Dostępne godziny

Wybierz dzień w kalendarzu.