Zaplanuj Dom prowadzi inwestora od formalności i projektu domu do wyboru wykonawcy i przygotowania startu budowy.

Szybki kontakt

Telefon:
886 887 572
Obsługa:
Cała Polska, 100% online
Umów konsultację
Projekt domu HK44 G1
Projekt domu

HK44 G1

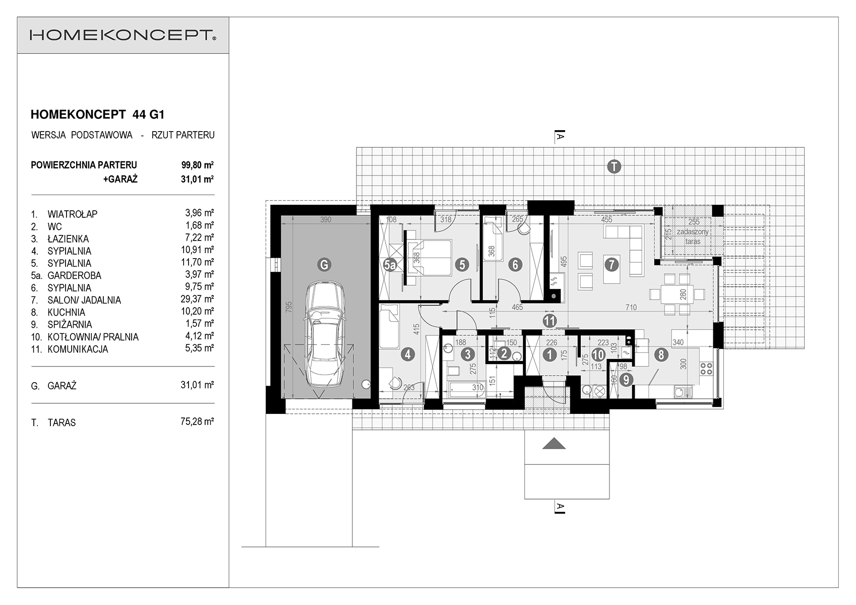
HK44 G1 to projekt domu parterowy o powierzchni użytkowej 99,8 m² z układem obejmującym 3 sypialnie, 2 łazienki, garaż jednostanowiskowy i…

Parterowy Płaski Garaż jednostanowiskowy Nowoczesny
Opis projektu

Projekt w skrócie.

HK44 G1 to projekt domu parterowy o powierzchni użytkowej 99,8 m² z układem obejmującym 3 sypialnie, 2 łazienki, garaż jednostanowiskowy i dachem płaski. W projekcie przewidziano m.in. pralnia, spiżarnia, kominek, zadaszony taras.

Kondygnacje
Parterowy
Sypialnie
3
Łazienki
2
Powierzchnia użytkowa / netto
99,8 m²
Minimalna działka
26,65 m × 16,87 m
Ogrzewanie
gazowe - piec kondensacyjny, panele solarne na dachu domu do podgrzewania wody użytkowej oraz ogrzewanie podłogowe w salonie z jadalnią, kuchni, łazienkach, wiatrołapie i części komunikacyjnej, tradycyjne grzejniki w pozostałych pomieszczeniach
Wentylacja
mechaniczna z rekuperacją
Pokrycie dachu
tradycyjna więźba dachowa pokryta dachówką ceramiczną lub cementową swissporTON, stropodach pełny kryty membraną EPDM
Cena projektu
5 990 zł
Układ i działka

Rzuty i plan działki.

Parter, poddasze i podstawowe dane działki w jednym miejscu.

Parametry projektu

Parametry techniczne.

Najważniejsze dane techniczne, technologia i instalacje.

Powierzchnia i wymiary
Powierzchnia użytkowa / netto
99,8 m²
Powierzchnia zabudowy
168,52 m²
Powierzchnia dachu
204 m²
Wysokość domu
7,42 m
Kubatura
908 m³
Kąt nachylenia dachu
35°
Minimalne wymiary działki
26,65 m × 16,87 m
Szerokość elewacji frontowej
21,85 m
Głębokość budynku
9,25 m
Technologia i konstrukcja
Technologia
murowany
Materiały ścian
dwuwarstwowe - pustak ceramiczny 25 cm + styropian Termo Organika 20 cm/wełna mineralna 18 cm
Pokrycie dachu
tradycyjna więźba dachowa pokryta dachówką ceramiczną lub cementową swissporTON, stropodach pełny kryty membraną EPDM
Konstrukcja stropu
żelbetowy wylewany
Układ kondygnacji
Parterowy
Garaż
Garaż jednostanowiskowy
Instalacje i energia
Instalacja grzewcza
gazowe - piec kondensacyjny, panele solarne na dachu domu do podgrzewania wody użytkowej oraz ogrzewanie podłogowe w salonie z jadalnią, kuchni, łazienkach, wiatrołapie i części komunikacyjnej, tradycyjne grzejniki w pozostałych pomieszczeniach
Instalacja CWU
gazowe - piec kondensacyjny, panele solarne na dachu domu do podgrzewania wody użytkowej oraz ogrzewanie podłogowe w salonie z jadalnią, kuchni, łazienkach, wiatrołapie i części komunikacyjnej, tradycyjne grzejniki w pozostałych pomieszczeniach
Instalacje dodatkowe
kominek
Rodzaj wentylacji
mechaniczna z rekuperacją
Energia pierwotna (EP)
65,46 kWh/m²/rok
Energia końcowa (EK)
24,87 kWh/m²/rok

Budujemy domy. Solidnie i z myślą o kolejnych dekadach.

Zajmujemy się kompleksową budową domów i odpowiadamy za całość inwestycji — od pierwszych prac na działce aż po odbiór kluczy.

Wizualizacja nowoczesnego domu parterowego z płaskim dachem, dużymi przeszkleniami i uporządkowanym ogrodem

Kompleksowa realizacja od działki po odbiór domu

Prowadzimy cały proces budowy i odpowiadamy za każdy etap inwestycji, tak żebyś nie musiał koordynować osobno ekip, dostaw i decyzji na placu budowy.

Materiały wybierane wspólnie z klientem

Każdą realizację zaczynamy od rozmowy o materiałach. Dobieramy je wspólnie tak, żeby dom był trwały, energooszczędny i komfortowy przez lata. Doradzamy, tłumaczymy i pomagamy podjąć najlepszą decyzję.

Jakość wykonania, terminy i stały kontakt

Twój dom traktujemy jak naszą wizytówkę — dlatego dbamy o jakość wykonania na każdym etapie, dotrzymujemy terminów i jesteśmy z Tobą przez cały czas trwania budowy.

  • Czas trwania 60 minut
  • Dostępność Poniedziałek - sobota
    10:00 - 19:00
  • Forma spotkania Google Meet

Przed spotkaniem nasz doradca skontaktuje się z Tobą, aby potwierdzić termin konsultacji.

Nie chcesz czekać? Napisz do nas na WhatsApp.

Napisz na WhatsApp
Kalendarz

Umów bezpłatną konsultację.

Europe/Warsaw
Ładowanie...
Dostępne godziny

Wybierz dzień w kalendarzu.