Zaplanuj Dom prowadzi inwestora od formalności i projektu domu do wyboru wykonawcy i przygotowania startu budowy.

Szybki kontakt

Telefon:
886 887 572
Obsługa:
Cała Polska, 100% online
Umów konsultację
Projekt domu HK52 B2
Projekt domu

HK52 B2

HK52 B2 to projekt domu piętrowy o powierzchni użytkowej 93,82 m² z układem obejmującym 3 sypialnie, 2 łazienki, garaż jednostanowiskowy i…

Piętrowy Płaski Garaż jednostanowiskowy Nowoczesny
Opis projektu

Projekt w skrócie.

HK52 B2 to projekt domu piętrowy o powierzchni użytkowej 93,82 m² z układem obejmującym 3 sypialnie, 2 łazienki, garaż jednostanowiskowy i dachem płaski. W projekcie przewidziano m.in. pralnia, kominek.

Kondygnacje
Piętrowy
Sypialnie
3
Łazienki
2
Powierzchnia użytkowa / netto
93,82 m² / 94,31 m²
Minimalna działka
36,43 m × 21 m
Ogrzewanie
gazowe - piec kondensacyjny, panele solarne na dachu do ogrzewania wody użytkowej oraz ogrzewanie podłogowe w salonie, jadalni, kuchni, łazience, toalecie, pralni, wiatrołapie i części komunikacyjnej, tradycyjne grzejniki w pozostałych pomieszczeniach
Wentylacja
grawitacyjna
Pokrycie dachu
stropodach pełny kryty membraną EPDM
Cena projektu
11 990 zł
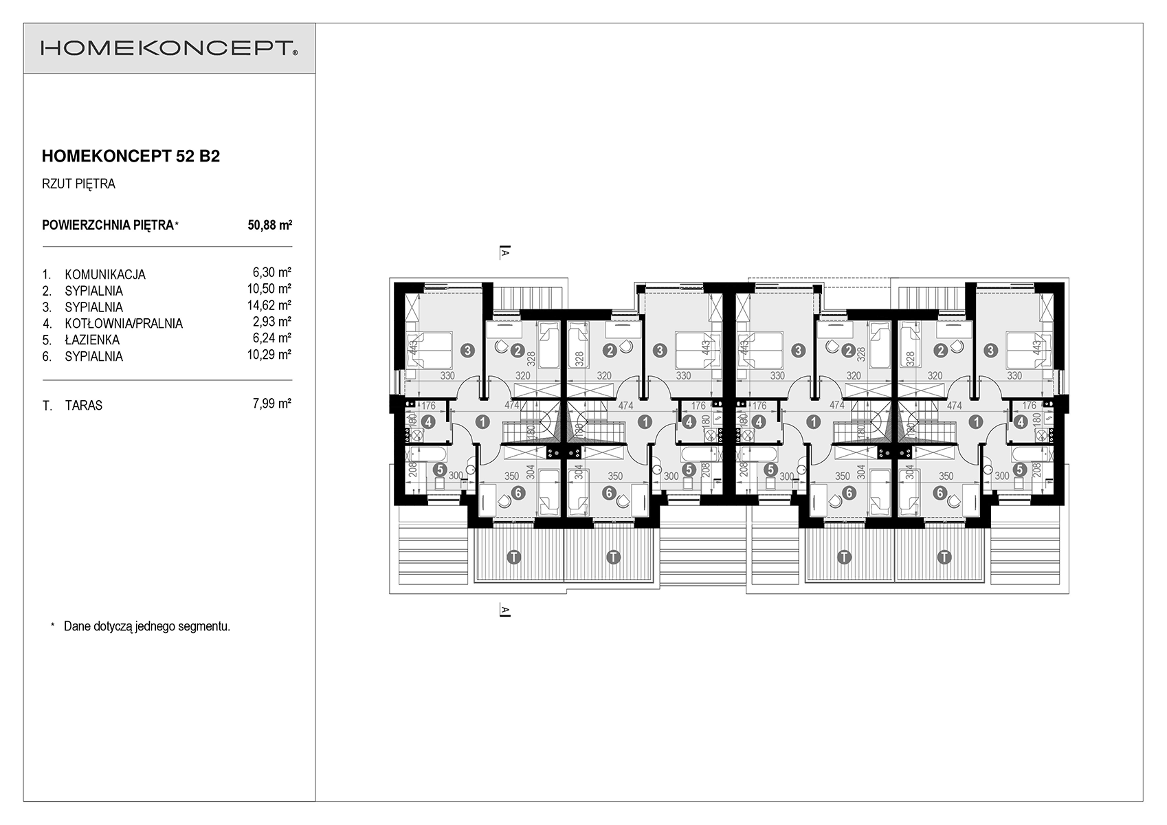
Układ i działka

Rzuty i plan działki.

Parter, poddasze i podstawowe dane działki w jednym miejscu.

Parametry projektu

Parametry techniczne.

Najważniejsze dane techniczne, technologia i instalacje.

Powierzchnia i wymiary
Powierzchnia użytkowa / netto
93,82 m² / 94,31 m²
Powierzchnia zabudowy
320,26 m²
Powierzchnia dachu
233 m²
Wysokość domu
6,81 m
Kubatura
1 984,5 m³
Minimalne wymiary działki
36,43 m × 21 m
Szerokość elewacji frontowej
28,83 m
Głębokość budynku
15,2 m
Technologia i konstrukcja
Technologia
murowany
Materiały ścian
dwuwarstwowe - pustak ceramiczny 25 cm + styropian Termo Organika 20 cm/wełna mineralna 18 cm
Pokrycie dachu
stropodach pełny kryty membraną EPDM
Konstrukcja stropu
żelbetowy wylewany
Układ kondygnacji
Piętrowy
Garaż
Garaż jednostanowiskowy
Instalacje i energia
Instalacja grzewcza
gazowe - piec kondensacyjny, panele solarne na dachu do ogrzewania wody użytkowej oraz ogrzewanie podłogowe w salonie, jadalni, kuchni, łazience, toalecie, pralni, wiatrołapie i części komunikacyjnej, tradycyjne grzejniki w pozostałych pomieszczeniach
Instalacja CWU
gazowe - piec kondensacyjny, panele solarne na dachu do ogrzewania wody użytkowej oraz ogrzewanie podłogowe w salonie, jadalni, kuchni, łazience, toalecie, pralni, wiatrołapie i części komunikacyjnej, tradycyjne grzejniki w pozostałych pomieszczeniach
Instalacje dodatkowe
kominek
Rodzaj wentylacji
grawitacyjna
Energia pierwotna (EP)
60,38 kWh/m²/rok
Energia końcowa (EK)
38,2 kWh/m²/rok

Budujemy domy. Solidnie i z myślą o kolejnych dekadach.

Zajmujemy się kompleksową budową domów i odpowiadamy za całość inwestycji — od pierwszych prac na działce aż po odbiór kluczy.

Wizualizacja nowoczesnego domu parterowego z płaskim dachem, dużymi przeszkleniami i uporządkowanym ogrodem

Kompleksowa realizacja od działki po odbiór domu

Prowadzimy cały proces budowy i odpowiadamy za każdy etap inwestycji, tak żebyś nie musiał koordynować osobno ekip, dostaw i decyzji na placu budowy.

Materiały wybierane wspólnie z klientem

Każdą realizację zaczynamy od rozmowy o materiałach. Dobieramy je wspólnie tak, żeby dom był trwały, energooszczędny i komfortowy przez lata. Doradzamy, tłumaczymy i pomagamy podjąć najlepszą decyzję.

Jakość wykonania, terminy i stały kontakt

Twój dom traktujemy jak naszą wizytówkę — dlatego dbamy o jakość wykonania na każdym etapie, dotrzymujemy terminów i jesteśmy z Tobą przez cały czas trwania budowy.

  • Czas trwania 60 minut
  • Dostępność Poniedziałek - sobota
    10:00 - 19:00
  • Forma spotkania Google Meet

Przed spotkaniem nasz doradca skontaktuje się z Tobą, aby potwierdzić termin konsultacji.

Nie chcesz czekać? Napisz do nas na WhatsApp.

Napisz na WhatsApp
Kalendarz

Umów bezpłatną konsultację.

Europe/Warsaw
Ładowanie...
Dostępne godziny

Wybierz dzień w kalendarzu.