Zaplanuj Dom prowadzi inwestora od formalności i projektu domu do wyboru wykonawcy i przygotowania startu budowy.

Szybki kontakt

Telefon:
886 887 572
Obsługa:
Cała Polska, 100% online
Umów konsultację
Projekt domu HK69
Projekt domu

HK69

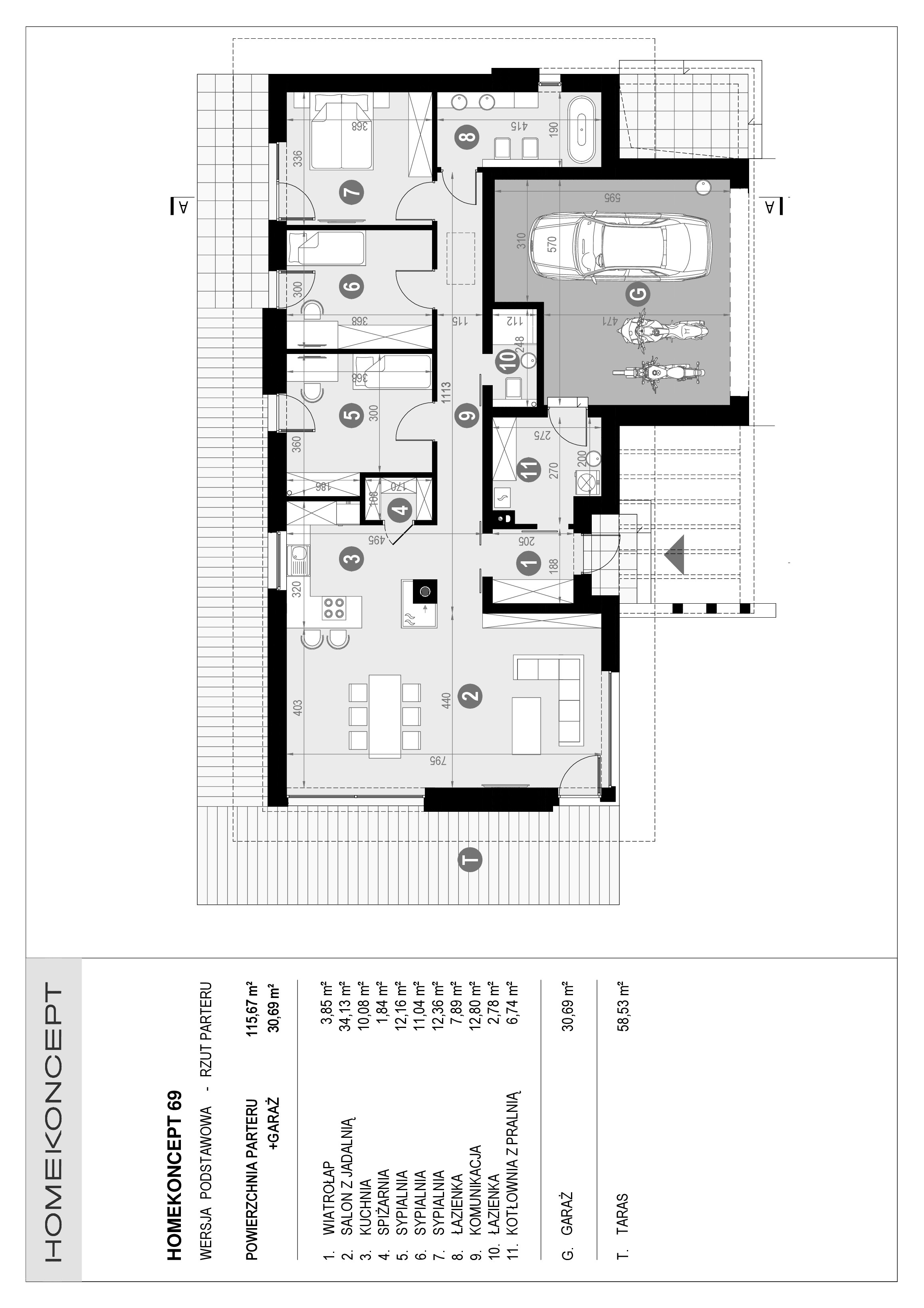
HK69 to projekt domu parterowy o powierzchni użytkowej 115,67 m² z układem obejmującym 3 sypialnie, 2 łazienki, garaż jednostanowiskowy i d…

Parterowy Inny dach Garaż jednostanowiskowy Tradycyjny
Opis projektu

Projekt w skrócie.

HK69 to projekt domu parterowy o powierzchni użytkowej 115,67 m² z układem obejmującym 3 sypialnie, 2 łazienki, garaż jednostanowiskowy i dachem inny dach. W projekcie przewidziano m.in. pralnia, spiżarnia, kominek, wjazd od południa.

Kondygnacje
Parterowy
Sypialnie
3
Łazienki
2
Powierzchnia użytkowa / netto
115,67 m²
Minimalna działka
25,45 m × 20,12 m
Ogrzewanie
gazowe - piec kondensacyjny oraz ogrzewanie podłogowe w jadalni, kuchni, salonie, komunikacji, łazienkach i wiatrołapie, tradycyjne grzejniki w pozostałych pomieszczeniach
Wentylacja
mechaniczna z rekuperacją
Pokrycie dachu
tradycyjna więźba dachowa pokryta dachówką ceramiczną lub cementową swissporTON
Cena projektu
5 990 zł
Układ i działka

Rzuty i plan działki.

Parter, poddasze i podstawowe dane działki w jednym miejscu.

Parametry projektu

Parametry techniczne.

Najważniejsze dane techniczne, technologia i instalacje.

Powierzchnia i wymiary
Powierzchnia użytkowa / netto
115,67 m²
Powierzchnia zabudowy
185,09 m²
Powierzchnia dachu
250 m²
Wysokość domu
6,85 m
Kubatura
970 m³
Kąt nachylenia dachu
30°
Minimalne wymiary działki
25,45 m × 20,12 m
Szerokość elewacji frontowej
18,75 m
Głębokość budynku
12,95 m
Technologia i konstrukcja
Technologia
murowany
Materiały ścian
dwuwarstwowe - pustak ceramiczny 25 cm + styropian Termo Organika 20 cm/wełna mineralna 18 cm
Pokrycie dachu
tradycyjna więźba dachowa pokryta dachówką ceramiczną lub cementową swissporTON
Konstrukcja stropu
żelbetowy wylewany
Układ kondygnacji
Parterowy
Garaż
Garaż jednostanowiskowy
Instalacje i energia
Instalacja grzewcza
gazowe - piec kondensacyjny oraz ogrzewanie podłogowe w jadalni, kuchni, salonie, komunikacji, łazienkach i wiatrołapie, tradycyjne grzejniki w pozostałych pomieszczeniach
Instalacja CWU
gazowe - piec kondensacyjny oraz ogrzewanie podłogowe w jadalni, kuchni, salonie, komunikacji, łazienkach i wiatrołapie, tradycyjne grzejniki w pozostałych pomieszczeniach
Instalacje dodatkowe
kominek
Rodzaj wentylacji
mechaniczna z rekuperacją
Energia pierwotna (EP)
67,3 kWh/m²/rok
Energia końcowa (EK)
19,62 kWh/m²/rok

Budujemy domy. Solidnie i z myślą o kolejnych dekadach.

Zajmujemy się kompleksową budową domów i odpowiadamy za całość inwestycji — od pierwszych prac na działce aż po odbiór kluczy.

Wizualizacja nowoczesnego domu parterowego z płaskim dachem, dużymi przeszkleniami i uporządkowanym ogrodem

Kompleksowa realizacja od działki po odbiór domu

Prowadzimy cały proces budowy i odpowiadamy za każdy etap inwestycji, tak żebyś nie musiał koordynować osobno ekip, dostaw i decyzji na placu budowy.

Materiały wybierane wspólnie z klientem

Każdą realizację zaczynamy od rozmowy o materiałach. Dobieramy je wspólnie tak, żeby dom był trwały, energooszczędny i komfortowy przez lata. Doradzamy, tłumaczymy i pomagamy podjąć najlepszą decyzję.

Jakość wykonania, terminy i stały kontakt

Twój dom traktujemy jak naszą wizytówkę — dlatego dbamy o jakość wykonania na każdym etapie, dotrzymujemy terminów i jesteśmy z Tobą przez cały czas trwania budowy.

  • Czas trwania 60 minut
  • Dostępność Poniedziałek - sobota
    10:00 - 19:00
  • Forma spotkania Google Meet

Przed spotkaniem nasz doradca skontaktuje się z Tobą, aby potwierdzić termin konsultacji.

Nie chcesz czekać? Napisz do nas na WhatsApp.

Napisz na WhatsApp
Kalendarz

Umów bezpłatną konsultację.

Europe/Warsaw
Ładowanie...
Dostępne godziny

Wybierz dzień w kalendarzu.