Zaplanuj Dom prowadzi inwestora od formalności i projektu domu do wyboru wykonawcy i przygotowania startu budowy.

Szybki kontakt

Telefon:
886 887 572
Obsługa:
Cała Polska, 100% online
Umów konsultację
Projekt domu HK93 B
Projekt domu

HK93 B

HK93 B to projekt domu z poddaszem o powierzchni użytkowej 131,3 m² z układem obejmującym 4 sypialnie, 2 łazienki, garaż jednostanowiskowy…

Z poddaszem Inny dach Garaż jednostanowiskowy Tradycyjny
Opis projektu

Projekt w skrócie.

HK93 B to projekt domu z poddaszem o powierzchni użytkowej 131,3 m² z układem obejmującym 4 sypialnie, 2 łazienki, garaż jednostanowiskowy i dachem inny dach. W projekcie przewidziano m.in. spiżarnia, kominek, master bedroom.

Kondygnacje
Z poddaszem
Sypialnie
4
Łazienki
2
Powierzchnia użytkowa / netto
131,3 m² / 138,22 m²
Minimalna działka
27,92 m × 17,98 m
Ogrzewanie
gazowe - piec kondensacyjny oraz ogrzewanie podłogowe w całym domu poza garażem i pomieszczeniem gospodarczym, w tych pomieszczeniach zastosowano tradycyjne grzejniki
Wentylacja
mechaniczna z rekuperacją
Pokrycie dachu
tradycyjna więźba dachowa pokryta blachą na rąbek, okna dachowe FAKRO
Cena projektu
9 990 zł
Układ i działka

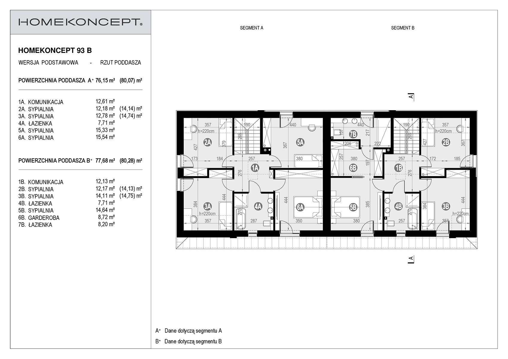
Rzuty i plan działki.

Parter, poddasze i podstawowe dane działki w jednym miejscu.

Parametry projektu

Parametry techniczne.

Najważniejsze dane techniczne, technologia i instalacje.

Powierzchnia i wymiary
Powierzchnia użytkowa / netto
131,3 m² / 138,22 m²
Powierzchnia zabudowy
205,17 m²
Powierzchnia dachu
179 m²
Wysokość domu
8,22 m
Kubatura
1 359 m³
Kąt nachylenia dachu
35°
Minimalne wymiary działki
27,92 m × 17,98 m
Szerokość elewacji frontowej
22,02 m
Głębokość budynku
10,13 m
Technologia i konstrukcja
Technologia
murowany
Materiały ścian
dwuwarstwowe - pustak ceramiczny 25 cm + styropian Termo Organika 20 cm/wełna mineralna 18 cm
Pokrycie dachu
tradycyjna więźba dachowa pokryta blachą na rąbek, okna dachowe FAKRO
Konstrukcja stropu
żelbetowy, wylewany
Układ kondygnacji
Z poddaszem
Garaż
Garaż jednostanowiskowy
Instalacje i energia
Instalacja grzewcza
gazowe - piec kondensacyjny oraz ogrzewanie podłogowe w całym domu poza garażem i pomieszczeniem gospodarczym, w tych pomieszczeniach zastosowano tradycyjne grzejniki
Instalacja CWU
gazowe - piec kondensacyjny oraz ogrzewanie podłogowe w całym domu poza garażem i pomieszczeniem gospodarczym, w tych pomieszczeniach zastosowano tradycyjne grzejniki
Instalacje dodatkowe
kominek
Rodzaj wentylacji
mechaniczna z rekuperacją
Energia pierwotna (EP)
68 kWh/m²/rok
Energia końcowa (EK)
17,3 kWh/m²/rok

Budujemy domy. Solidnie i z myślą o kolejnych dekadach.

Zajmujemy się kompleksową budową domów i odpowiadamy za całość inwestycji — od pierwszych prac na działce aż po odbiór kluczy.

Wizualizacja nowoczesnego domu parterowego z płaskim dachem, dużymi przeszkleniami i uporządkowanym ogrodem

Kompleksowa realizacja od działki po odbiór domu

Prowadzimy cały proces budowy i odpowiadamy za każdy etap inwestycji, tak żebyś nie musiał koordynować osobno ekip, dostaw i decyzji na placu budowy.

Materiały wybierane wspólnie z klientem

Każdą realizację zaczynamy od rozmowy o materiałach. Dobieramy je wspólnie tak, żeby dom był trwały, energooszczędny i komfortowy przez lata. Doradzamy, tłumaczymy i pomagamy podjąć najlepszą decyzję.

Jakość wykonania, terminy i stały kontakt

Twój dom traktujemy jak naszą wizytówkę — dlatego dbamy o jakość wykonania na każdym etapie, dotrzymujemy terminów i jesteśmy z Tobą przez cały czas trwania budowy.

  • Czas trwania 60 minut
  • Dostępność Poniedziałek - sobota
    10:00 - 19:00
  • Forma spotkania Google Meet

Przed spotkaniem nasz doradca skontaktuje się z Tobą, aby potwierdzić termin konsultacji.

Nie chcesz czekać? Napisz do nas na WhatsApp.

Napisz na WhatsApp
Kalendarz

Umów bezpłatną konsultację.

Europe/Warsaw
Ładowanie...
Dostępne godziny

Wybierz dzień w kalendarzu.