Zaplanuj Dom prowadzi inwestora od formalności i projektu domu do wyboru wykonawcy i przygotowania startu budowy.

Szybki kontakt

Telefon:
886 887 572
Obsługa:
Cała Polska, 100% online
Umów konsultację
Projekt domu Z widokiem na gwiazdy pa
Projekt domu
Projekt Murator

Z widokiem na gwiazdy pa

Z widokiem na gwiazdy pa A118/1

Z poddaszem Dwuspadowy Bez garażu Tradycyjny
Opis projektu

Projekt w skrócie.

Projekt domu Z widokiem na gwiazdy pa to z widokiem na gwiazdy pa a118/1. W układzie przewidziano 1 łazienka, salon 33,6 m², bez garażu. Minimalna działka: 16,8 m × 22,8 m.

Kondygnacje
Z poddaszem
Łazienki
1
Salon
33,6 m²
Powierzchnia użytkowa / netto
86,7 m² / 90,8 m²
Minimalna działka
16,8 m × 22,8 m
Ogrzewanie
pompa ciepła
Pokrycie dachu
blacha na rąbek stojący + folia paroprzepuszczalna + wełna mineralna 30 cm + paroizolacja + płyta g-k
Cena projektu
3 599 zł
Układ i działka

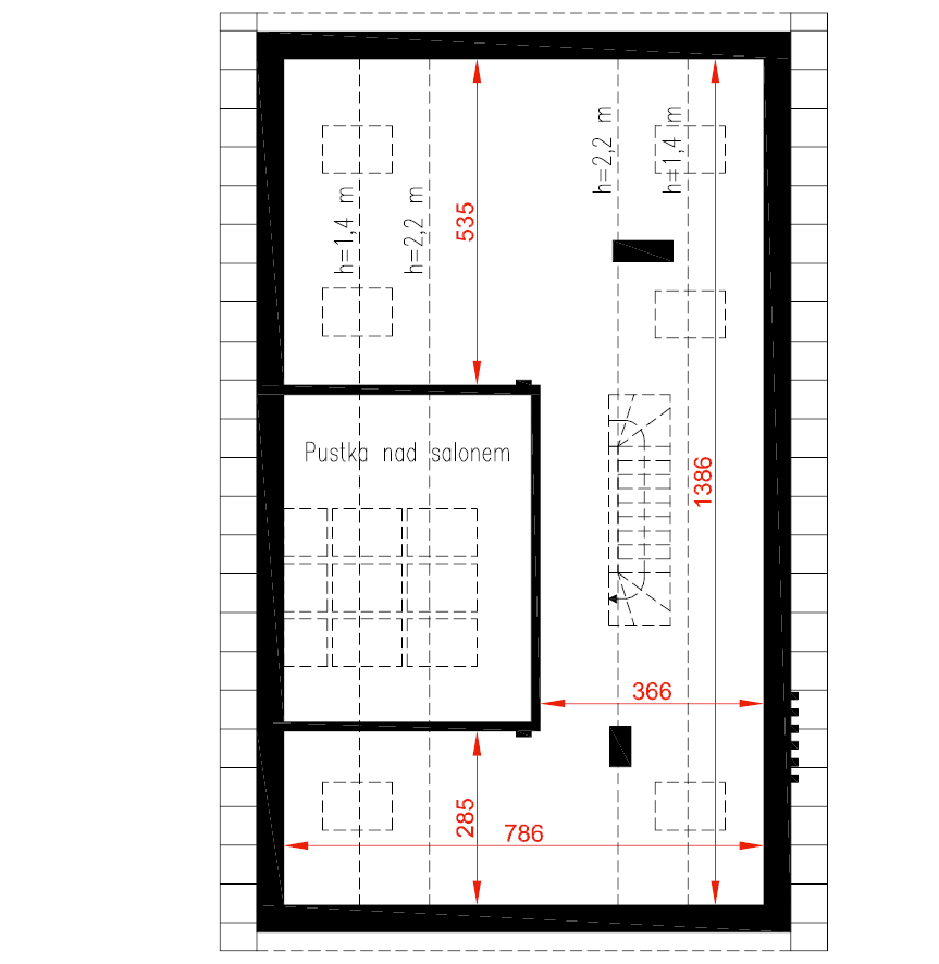
Rzuty i plan działki.

Parter, poddasze i podstawowe dane działki w jednym miejscu.

Parametry projektu

Parametry techniczne.

Najważniejsze dane techniczne, technologia i instalacje.

Powierzchnia i wymiary
Powierzchnia użytkowa / netto
86,7 m² / 90,8 m²
Powierzchnia zabudowy
128,8 m²
Wysokość domu
7,12 m
Kubatura
681,2 m³
Kąt nachylenia dachu
35°
Minimalne wymiary działki
16,8 m × 22,8 m
Szerokość elewacji frontowej
8,8 m
Głębokość budynku
14,8 m
Technologia i konstrukcja
Technologia
murowa
Materiały ścian
murowane, dwuwarstwowe: beton komórkowy 24 cm + styropian 18-20 cm i tynk wewnętrzny
Pokrycie dachu
blacha na rąbek stojący + folia paroprzepuszczalna + wełna mineralna 30 cm + paroizolacja + płyta g-k
Konstrukcja dachu
drewniana (krokwiowo-jętkowa) + łaty i kontrłaty
Konstrukcja stropu
płyta żelbetowa 17 cm + folia + wełna mineralna 30 cm i tynk wewnętrzny
Układ kondygnacji
Z poddaszem
Garaż
Bez garażu
Instalacje i energia
Instalacja grzewcza
pompa ciepła
Instalacja CWU
pompa ciepła
Instalacje dodatkowe
panele fotowoltaiczne

Budujemy domy. Solidnie i z myślą o kolejnych dekadach.

Zajmujemy się kompleksową budową domów i odpowiadamy za całość inwestycji — od pierwszych prac na działce aż po odbiór kluczy.

Wizualizacja nowoczesnego domu parterowego z płaskim dachem, dużymi przeszkleniami i uporządkowanym ogrodem

Kompleksowa realizacja od działki po odbiór domu

Prowadzimy cały proces budowy i odpowiadamy za każdy etap inwestycji, tak żebyś nie musiał koordynować osobno ekip, dostaw i decyzji na placu budowy.

Materiały wybierane wspólnie z klientem

Każdą realizację zaczynamy od rozmowy o materiałach. Dobieramy je wspólnie tak, żeby dom był trwały, energooszczędny i komfortowy przez lata. Doradzamy, tłumaczymy i pomagamy podjąć najlepszą decyzję.

Jakość wykonania, terminy i stały kontakt

Twój dom traktujemy jak naszą wizytówkę — dlatego dbamy o jakość wykonania na każdym etapie, dotrzymujemy terminów i jesteśmy z Tobą przez cały czas trwania budowy.

  • Czas trwania 60 minut
  • Dostępność Poniedziałek - sobota
    10:00 - 19:00
  • Forma spotkania Google Meet

Przed spotkaniem nasz doradca skontaktuje się z Tobą, aby potwierdzić termin konsultacji.

Nie chcesz czekać? Napisz do nas na WhatsApp.

Napisz na WhatsApp
Kalendarz

Umów bezpłatną konsultację.

Europe/Warsaw
Ładowanie...
Dostępne godziny

Wybierz dzień w kalendarzu.