Zaplanuj Dom prowadzi inwestora od formalności i projektu domu do wyboru wykonawcy i przygotowania startu budowy.

Szybki kontakt

Telefon:
886 887 572
Obsługa:
Cała Polska, 100% online
Umów konsultację
Projekt domu Elastyczny (bliźniak)
Projekt domu
Projekt Murator

Elastyczny (bliźniak)

Elastyczny (bliźniak) BCC346

Z poddaszem Dwuspadowy Bez garażu Tradycyjny
Opis projektu

Projekt w skrócie.

Zgrabny bliźniak o bardzo prostej bryle, który z pewnością będzie tani w budowie i eksploatacji. Charakteryzuje go bardzo ładny dobór materiałów wykończeniowych – ciemna, płaska dachówka w kolorze grafitowym doskonale współgra z jasnym drewnem na elewacji. Taki dom będzie pięknie wyglądał zarówno na wiejskiej, jak i podmiejskiej działce. Parter domu ma blisko 64 mkw. i tworzy wygodną przestrzeń dla młodego małżeństwa lub pary seniorów. W razie potrzeby jest możliwość adaptacji dodatkowych 45 mkw. poddasza. Dzięki temu projekt nadaje się do realizacji etapami. Wnętrze domu jest podzielone na strefę dzienną zlokalizowaną od frontu i nocną – od ogrodu. W centrum znajduje się przestronny salon z miejscem na stół dla całej rodziny. Nie zabrakło w nim też kominka, który wprowadzi atmosferę ogniska domowego. Duże przeszklenie w salonie otwiera wnętrze na taras i ogród. Za przesuwnymi drzwiami znajdziemy sporą, dwuosobową sypialnię, łazienkę z wanną i prysznicem oraz kotłownię, w której można zamontować kocioł na paliwo stałe.
Projekty domów z Kolekcji Muratora są dostępne także w wersji lustrzanego odbicia
Kondygnacje
Z poddaszem
Sypialnie
1
Łazienki
1
Salon
30 m²
Powierzchnia użytkowa / netto
63,8 m² / 68,8 m²
Minimalna działka
21,6 m × 20,8 m
Ogrzewanie
kocioł na paliwo stałe
Pokrycie dachu
dachówka ceramiczna lub blachodachówka + folia paroprzepuszczalna + deski 2,5 cm
Cena projektu
Cena na zapytanie
Układ i działka

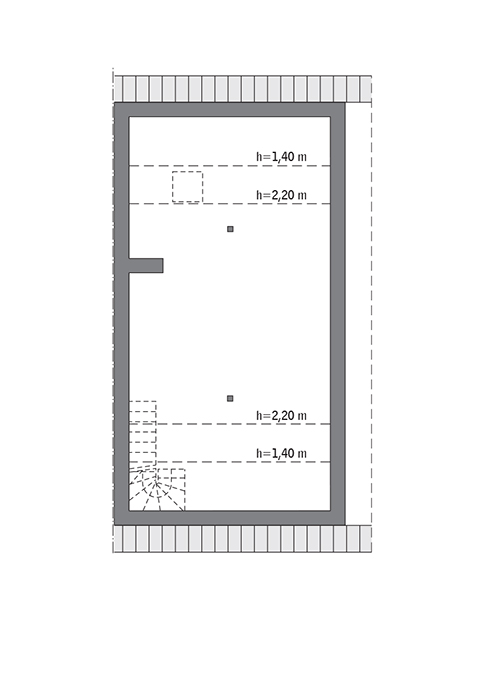
Rzuty i plan działki.

Parter, poddasze i podstawowe dane działki w jednym miejscu.

Parametry projektu

Parametry techniczne.

Najważniejsze dane techniczne, technologia i instalacje.

Powierzchnia i wymiary
Powierzchnia użytkowa / netto
63,8 m² / 68,8 m²
Powierzchnia zabudowy
88,4 m²
Wysokość domu
8,29 m
Kubatura
534,2 m³
Kąt nachylenia dachu
35°
Minimalne wymiary działki
21,6 m × 20,8 m
Szerokość elewacji frontowej
13,6 m
Głębokość budynku
12,8 m
Technologia i konstrukcja
Technologia
murowa
Materiały ścian
murowane, dwuwarstwowe: pustak ceramiczny poryzowany 24 cm + styropian 20 cm i tynk wewnętrzny / murowane, jednowarstwowe: pustak ceramiczny poryzowany 24 cm i tynk wewnętrzny
Pokrycie dachu
dachówka ceramiczna lub blachodachówka + folia paroprzepuszczalna + deski 2,5 cm
Konstrukcja dachu
drewniana (krokwiowo-płatwiowa) + łaty i kontrłaty
Konstrukcja stropu
płyta żelbetowa 20 cm + folia paroizolacyjna + wełna minerlana 30 cm + płyta osb 2 cm i tynk wewnętrzny
Układ kondygnacji
Z poddaszem
Garaż
Bez garażu
Instalacje i energia
Instalacja grzewcza
kocioł na paliwo stałe
Instalacja CWU
kocioł na paliwo stałe
Energia pierwotna (EP)
54,4 kWh/m²/rok

Budujemy domy. Solidnie i z myślą o kolejnych dekadach.

Zajmujemy się kompleksową budową domów i odpowiadamy za całość inwestycji — od pierwszych prac na działce aż po odbiór kluczy.

Wizualizacja nowoczesnego domu parterowego z płaskim dachem, dużymi przeszkleniami i uporządkowanym ogrodem

Kompleksowa realizacja od działki po odbiór domu

Prowadzimy cały proces budowy i odpowiadamy za każdy etap inwestycji, tak żebyś nie musiał koordynować osobno ekip, dostaw i decyzji na placu budowy.

Materiały wybierane wspólnie z klientem

Każdą realizację zaczynamy od rozmowy o materiałach. Dobieramy je wspólnie tak, żeby dom był trwały, energooszczędny i komfortowy przez lata. Doradzamy, tłumaczymy i pomagamy podjąć najlepszą decyzję.

Jakość wykonania, terminy i stały kontakt

Twój dom traktujemy jak naszą wizytówkę — dlatego dbamy o jakość wykonania na każdym etapie, dotrzymujemy terminów i jesteśmy z Tobą przez cały czas trwania budowy.

  • Czas trwania 60 minut
  • Dostępność Poniedziałek - sobota
    10:00 - 19:00
  • Forma spotkania Google Meet

Przed spotkaniem nasz doradca skontaktuje się z Tobą, aby potwierdzić termin konsultacji.

Nie chcesz czekać? Napisz do nas na WhatsApp.

Napisz na WhatsApp
Kalendarz

Umów bezpłatną konsultację.

Europe/Warsaw
Ładowanie...
Dostępne godziny

Wybierz dzień w kalendarzu.