Zaplanuj Dom prowadzi inwestora od formalności i projektu domu do wyboru wykonawcy i przygotowania startu budowy.

Szybki kontakt

Telefon:
886 887 572
Obsługa:
Cała Polska, 100% online
Umów konsultację
Projekt domu Przejrzysty - wariant XI
Projekt domu
Projekt Murator

Przejrzysty - wariant XI

Przejrzysty - wariant XI C365k

Z poddaszem Dwuspadowy Garaż na 2 auta Nowoczesny
Opis projektu

Projekt w skrócie.

Przejrzysty – wariant XI, to nowoczesny dom, dedykowany miłośnikom jasnych i przestronnych wnętrz. Prym wiodą tu obszerne przeszklenia, gwarantujące nie tylko świetne doświetlenie i kontakt z naturą, ale też optyczne powiększenie pomieszczeń. Motywem przewodnim jest naturalne drewno wtopione w biel ścian, tworząc uporządkowany i harmonijny obraz. Wizualizacja oraz funkcja domu nawiązują do skandynawskiego stylu, w którym dominuje minimalizm, jasne wnętrza przepełnione pozytywną energią i zamiłowanie do praktycznych rozwiązań. To wszystko znajdziemy w Przejrzystym – wariant XI. W centralnym punkcie domu znajduje się pokój dzienny, który oddzielono od kuchni za pomocą wyspy. Kuchnia nie jest zbyt duża, ale dzięki połączeniu jej z kotłownią, stworzono dodatkowe miejsce na przechowywaniu rzadziej używanego sprzętu lub produktów. Z prawej strony salonu zaplanowano dwie sypialnie oraz łazienkę, a z lewej – gabinet, z którego w łatwy sposób można zrezygnować, powiększając tym samym strefę dzienną. Usytuowany w rogu kominek nie zakłóci funkcjonalności dostępnych ścian, a jednocześnie ociepli przestrzeń niemalże całego parteru. W przedsionku przewidziano dodatkową łazienkę – idealne rozwiązania podczas wizyt gości. Z lewej strony domu zaprojektowano dwustanowiskowy garaż z obszernym zapleczem gospodarczym, dostępnym także z tarasu. Będzie to idealna przestrzeń na magazynowanie sprzętu grillowego i ogrodowych mebli. Szczególna uwagę skupia elewacja tylna, wzdłuż której roztacza się wygodny, częściowo zadaszony taras. Wszechobecne drewno uspokaja i wprowadza relaksującą atmosferę, a boczne ściany zapewniają poczucie intymności. Dodatkowym atutem Przejrzystego – wariant XI, jest możliwość indywidualnej adaptacji poddasza na cele użytkowe. Przestrzeń wynosząca ponad 66 mkw. pozwoli na wygospodarowanie kolejnych, potrzebnych pomieszczeń.
Projekty domów z Kolekcji Muratora są dostępne także w wersji lustrzanego odbicia.
Kondygnacje
Z poddaszem
Sypialnie
2
Łazienki
2
Salon
30,6 m²
Powierzchnia użytkowa / netto
91,6 m² / 145,2 m²
Minimalna działka
26,8 m × 18 m
Ogrzewanie
kocioł na paliwo stałe
Pokrycie dachu
dachówka ceramiczna lub blachodachówka + folia paroprzepuszczalna + deski 2,5 cm
Cena projektu
3 899 zł
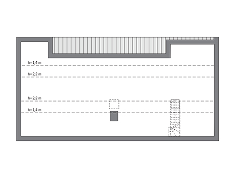
Układ i działka

Rzuty i plan działki.

Parter, poddasze i podstawowe dane działki w jednym miejscu.

Parametry projektu

Parametry techniczne.

Najważniejsze dane techniczne, technologia i instalacje.

Powierzchnia i wymiary
Powierzchnia użytkowa / netto
91,6 m² / 145,2 m²
Powierzchnia zabudowy
200,2 m²
Wysokość domu
6,97 m
Kubatura
1 364,9 m³
Kąt nachylenia dachu
35°
Minimalne wymiary działki
26,8 m × 18 m
Szerokość elewacji frontowej
19,8 m
Głębokość budynku
10,2 m
Technologia i konstrukcja
Technologia
murowa
Materiały ścian
murowane, dwuwarstwowe: pustak ceramiczny poryzowany 24 cm + styropian 20 cm i tynk wewnętrzny / murowane, dwuwarstwowe: pustak ceramiczny poryzowany 24 cm + wełna mineralna 20 cm + wiatroizolacja i tynk wewnętrzny
Pokrycie dachu
dachówka ceramiczna lub blachodachówka + folia paroprzepuszczalna + deski 2,5 cm
Konstrukcja dachu
drewniana (krokwiowo-jętkowa) + łaty i kontrłaty
Konstrukcja stropu
płyta żelbetowa 14-20 cm + folia paroizolacyjna + wełna mineralna 30 cm + płyta osb 2 cm i tynk wewnętrzny
Układ kondygnacji
Z poddaszem
Garaż
Garaż na 2 auta
Instalacje i energia
Instalacja grzewcza
kocioł na paliwo stałe
Instalacja CWU
kocioł na paliwo stałe
Energia pierwotna (EP)
34,09 kWh/m²/rok

Budujemy domy. Solidnie i z myślą o kolejnych dekadach.

Zajmujemy się kompleksową budową domów i odpowiadamy za całość inwestycji — od pierwszych prac na działce aż po odbiór kluczy.

Wizualizacja nowoczesnego domu parterowego z płaskim dachem, dużymi przeszkleniami i uporządkowanym ogrodem

Kompleksowa realizacja od działki po odbiór domu

Prowadzimy cały proces budowy i odpowiadamy za każdy etap inwestycji, tak żebyś nie musiał koordynować osobno ekip, dostaw i decyzji na placu budowy.

Materiały wybierane wspólnie z klientem

Każdą realizację zaczynamy od rozmowy o materiałach. Dobieramy je wspólnie tak, żeby dom był trwały, energooszczędny i komfortowy przez lata. Doradzamy, tłumaczymy i pomagamy podjąć najlepszą decyzję.

Jakość wykonania, terminy i stały kontakt

Twój dom traktujemy jak naszą wizytówkę — dlatego dbamy o jakość wykonania na każdym etapie, dotrzymujemy terminów i jesteśmy z Tobą przez cały czas trwania budowy.

  • Czas trwania 60 minut
  • Dostępność Poniedziałek - sobota
    10:00 - 19:00
  • Forma spotkania Google Meet

Przed spotkaniem nasz doradca skontaktuje się z Tobą, aby potwierdzić termin konsultacji.

Nie chcesz czekać? Napisz do nas na WhatsApp.

Napisz na WhatsApp
Kalendarz

Umów bezpłatną konsultację.

Europe/Warsaw
Ładowanie...
Dostępne godziny

Wybierz dzień w kalendarzu.