Zaplanuj Dom prowadzi inwestora od formalności i projektu domu do wyboru wykonawcy i przygotowania startu budowy.

Szybki kontakt

Telefon:
886 887 572
Obsługa:
Cała Polska, 100% online
Umów konsultację
Projekt domu Przejrzysty 4 - wariant XVI
Projekt domu
Projekt Murator

Przejrzysty 4 - wariant XVI

Przejrzysty 4 - wariant XVI C465r

Z poddaszem Wielospadowy Garaż na 2 auta Tradycyjny
Opis projektu

Projekt w skrócie.

Projekty domów z Kolekcji Muratora są dostępne także w wersji lustrzanego odbicia.

Jeśli szukasz tego projektu z dachem dwuspadowym zobacz projekt C365r - Przejrzysty - wariant XVI

Kondygnacje
Z poddaszem
Sypialnie
4
Łazienki
2
Salon
32,1 m²
Powierzchnia użytkowa / netto
94,4 m² / 130,7 m²
Minimalna działka
22,2 m × 19,7 m
Ogrzewanie
kocioł na paliwo stałe
Pokrycie dachu
dachówka ceramiczna lub blachodachówka + folia paroprzepuszczalna + deski 2,5 cm
Cena projektu
3 899 zł
Układ i działka

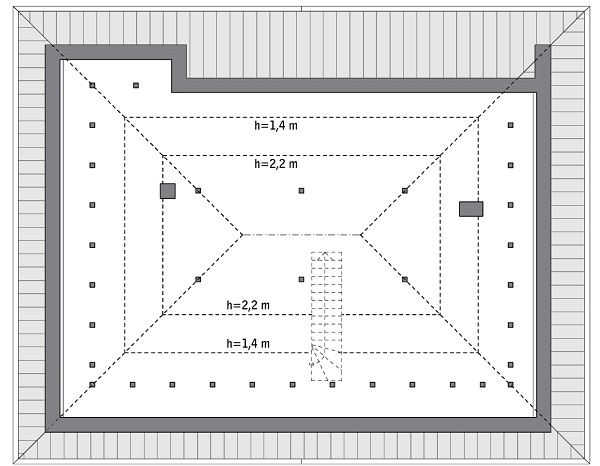
Rzuty i plan działki.

Parter, poddasze i podstawowe dane działki w jednym miejscu.

Parametry projektu

Parametry techniczne.

Najważniejsze dane techniczne, technologia i instalacje.

Powierzchnia i wymiary
Powierzchnia użytkowa / netto
94,4 m² / 130,7 m²
Powierzchnia zabudowy
165,2 m²
Wysokość domu
7,97 m
Kubatura
762 m³
Kąt nachylenia dachu
35°
Minimalne wymiary działki
22,2 m × 19,7 m
Szerokość elewacji frontowej
15,2 m
Głębokość budynku
11,7 m
Technologia i konstrukcja
Technologia
murowa
Materiały ścian
murowane, dwuwarstwowe: pustak ceramiczny poryzowany 24 cm + styropian 20 cm i tynk wewnętrzny / murowane, dwuwarstwowe: pustak ceramiczny poryzowany 24 cm + wełna mineralna 20 cm + wiatroizolacja i tynk wewnętrzny
Pokrycie dachu
dachówka ceramiczna lub blachodachówka + folia paroprzepuszczalna + deski 2,5 cm
Konstrukcja dachu
drewniana (krokwiowo-płatwiowa) + łaty i kontrłaty
Konstrukcja stropu
płyta żelbetowa 16-18 cm + folia paroizolacyjna + wełna mineralna 30 cm + płyta osb 2 cm i tynk wewnętrzny
Układ kondygnacji
Z poddaszem
Garaż
Garaż na 2 auta
Instalacje i energia
Instalacja grzewcza
kocioł na paliwo stałe
Instalacja CWU
kocioł na paliwo stałe
Energia pierwotna (EP)
35,87 kWh/m²/rok

Budujemy domy. Solidnie i z myślą o kolejnych dekadach.

Zajmujemy się kompleksową budową domów i odpowiadamy za całość inwestycji — od pierwszych prac na działce aż po odbiór kluczy.

Wizualizacja nowoczesnego domu parterowego z płaskim dachem, dużymi przeszkleniami i uporządkowanym ogrodem

Kompleksowa realizacja od działki po odbiór domu

Prowadzimy cały proces budowy i odpowiadamy za każdy etap inwestycji, tak żebyś nie musiał koordynować osobno ekip, dostaw i decyzji na placu budowy.

Materiały wybierane wspólnie z klientem

Każdą realizację zaczynamy od rozmowy o materiałach. Dobieramy je wspólnie tak, żeby dom był trwały, energooszczędny i komfortowy przez lata. Doradzamy, tłumaczymy i pomagamy podjąć najlepszą decyzję.

Jakość wykonania, terminy i stały kontakt

Twój dom traktujemy jak naszą wizytówkę — dlatego dbamy o jakość wykonania na każdym etapie, dotrzymujemy terminów i jesteśmy z Tobą przez cały czas trwania budowy.

  • Czas trwania 60 minut
  • Dostępność Poniedziałek - sobota
    10:00 - 19:00
  • Forma spotkania Google Meet

Przed spotkaniem nasz doradca skontaktuje się z Tobą, aby potwierdzić termin konsultacji.

Nie chcesz czekać? Napisz do nas na WhatsApp.

Napisz na WhatsApp
Kalendarz

Umów bezpłatną konsultację.

Europe/Warsaw
Ładowanie...
Dostępne godziny

Wybierz dzień w kalendarzu.