Zaplanuj Dom prowadzi inwestora od formalności i projektu domu do wyboru wykonawcy i przygotowania startu budowy.

Szybki kontakt

Telefon:
886 887 572
Obsługa:
Cała Polska, 100% online
Umów konsultację
Projekt domu Z177 D
Projekt domu

Z177 D

Mały, wygodny i praktyczny dom na wąską działkę.

Z poddaszem Dwuspadowy Bez garażu Tradycyjny
Opis projektu

Projekt w skrócie.

Z177 D to projekt domu z poddaszem użytkowym. Prosta, zgrabna bryła, dwuspadowy dach oraz ciekawe wykończenie elewacji nadają mu charakterystycznego wyglądu

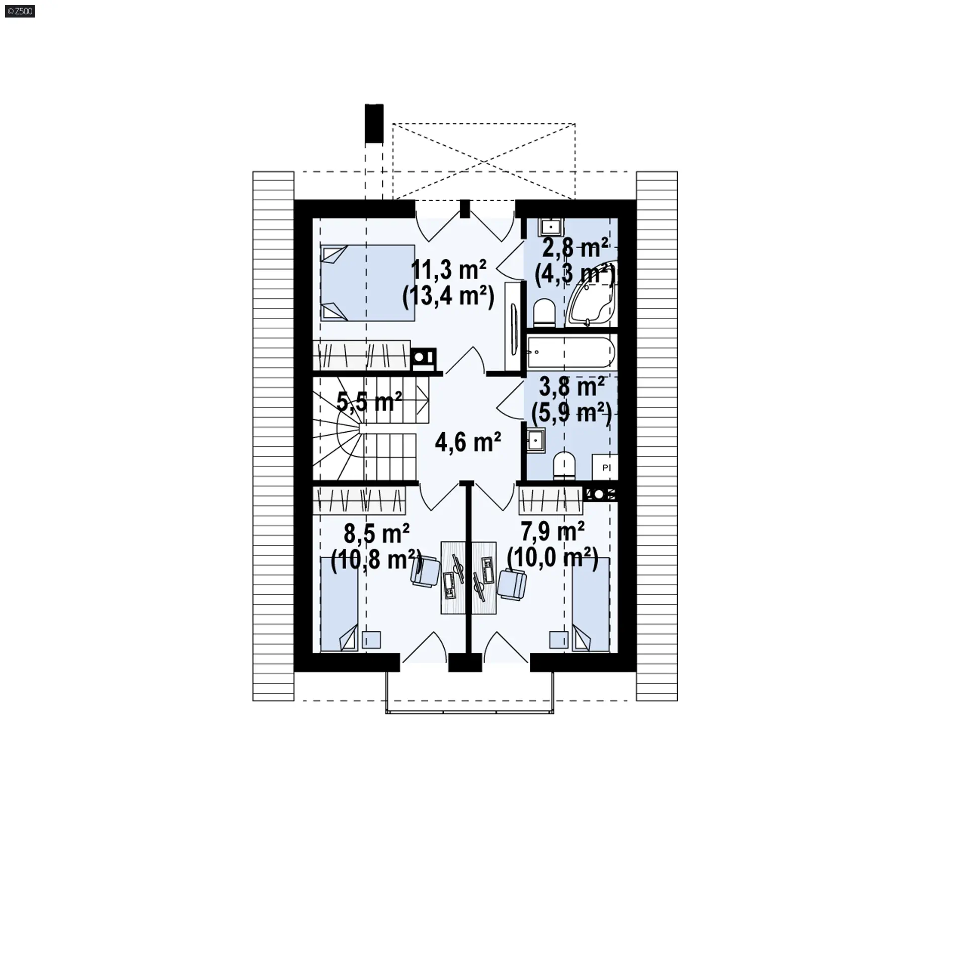
Na parter wchodzimy przez zadaszone wejście prosto do sieni. Z prawej strony zlokalizowano pomieszczenie gospodarcze. Dalej znajduje się podłużny korytarz, z którego można przejść do gabinetu, wc, na klatkę schodową oraz do salonu połączonego z jadalnią i częściowo z kuchnią. Piętro to strefa prywatna domowników. Umieszczono tu dużą sypialnie z osobną łazienką, dwa ustawne pokoje, każdy z osobnym wyjściem na balkon, oraz wspólną łazienkę.

Projekt Z177 D spodoba się wszystkim tym, którzy szukają wygodnego i praktycznego domu.

Kondygnacje
Z poddaszem
Sypialnie
3
Łazienki
3
Salon
19,59 m²
Powierzchnia użytkowa / netto
83,66 m² / 105,1 m²
Minimalna działka
13,92 m × 17,62 m
Ogrzewanie
kocioł na gaz
Wentylacja
mechaniczna (rekuperacja)
Pokrycie dachu
gont / blacha / blachodachówka / dachówka
Cena projektu
4 670 zł
Układ i działka

Rzuty i plan działki.

Parter, poddasze i podstawowe dane działki w jednym miejscu.

Parametry projektu

Parametry techniczne.

Najważniejsze dane techniczne, technologia i instalacje.

Powierzchnia i wymiary
Powierzchnia użytkowa / netto
83,66 m² / 105,1 m²
Powierzchnia zabudowy
66,92 m²
Powierzchnia dachu
126,08 m²
Wysokość domu
7,92 m
Kubatura
274,36 m³
Kąt nachylenia dachu
40°
Minimalne wymiary działki
13,92 m × 17,62 m
Szerokość elewacji frontowej
6,92 m
Głębokość budynku
9,62 m
Technologia i konstrukcja
Technologia
drewniany
Materiały ścian
szkielet drewniany
Pokrycie dachu
gont / blacha / blachodachówka / dachówka
Konstrukcja dachu
więźba tradycyjna
Konstrukcja stropu
drewniany
Układ kondygnacji
Z poddaszem
Garaż
Bez garażu
Instalacje i energia
Instalacja grzewcza
kocioł na gaz
Instalacja CWU
kocioł na gaz
Rodzaj wentylacji
mechaniczna (rekuperacja)
Energia pierwotna (EP)
65,76 kWh/m²/rok
Energia końcowa (EK)
51,91 kWh/m²/rok
Koszt budowy

Koszty etapów budowy.

Etap Ceny średnie Ceny minimalne
Do stanu zero 89 109 zł 82 645 zł
Do stanu surowego otwartego 324 985 zł 301 410 zł
Do stanu surowego zamkniętego 414 094 zł 384 055 zł
Instalacje 62 114 zł 57 608 zł
Prace wykończeniowe 186 342 zł 172 825 zł
Razem 662 550 zł 614 488 zł
  • Czas trwania 60 minut
  • Dostępność Poniedziałek - sobota
    10:00 - 19:00
  • Forma spotkania Google Meet

Przed spotkaniem nasz doradca skontaktuje się z Tobą, aby potwierdzić termin konsultacji.

Nie chcesz czekać? Napisz do nas na WhatsApp.

Napisz na WhatsApp
Kalendarz

Umów bezpłatną konsultację.

Europe/Warsaw
Ładowanie...
Dostępne godziny

Wybierz dzień w kalendarzu.