Zaplanuj Dom prowadzi inwestora od formalności i projektu domu do wyboru wykonawcy i przygotowania startu budowy.

Szybki kontakt

Telefon:
886 887 572
Obsługa:
Cała Polska, 100% online
Umów konsultację
Projekt domu Z244 GP
Projekt domu

Z244 GP

wariant z garażem 1-stanowiskowym po prawej stronie.

Z poddaszem Dwuspadowy Garaż jednostanowiskowy Tradycyjny
Opis projektu

Projekt w skrócie.

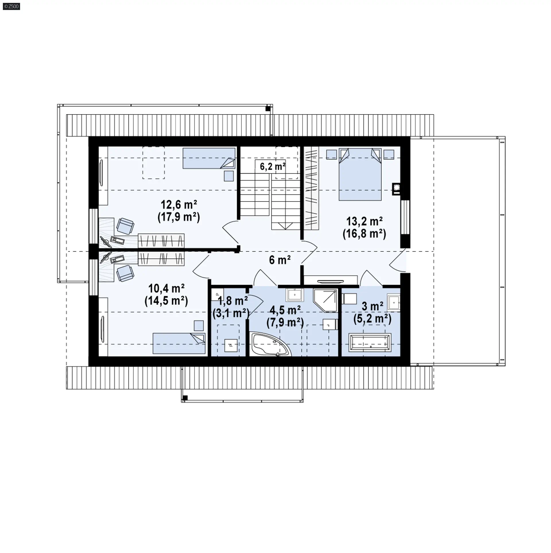
Projekt Z244 GP to wariant z garażem jednostanowiskowym. Na parterze po lewej stronie wejścia znajdujemy otwartą kuchnię połączoną z salonem. W środkowej części pomieszczenia umieszczono wygodny stół jadalniany gdzie domownicy mogą cieszyć się wspólnymi posiłkami a duże okno doświetla wnętrze.Hol oraz schody dzielną parter na dwie części, z czego druga część to pokój dzienny oraz łazienka, które mogą funkcjonować jako pokój gościnny lub gabinet do pracy zdalnej lub przyjmowania klientów. Sień pomiędzy łączy część mieszkalną z garażem jednostanowiskowym. W tylnej części garażu umieszczono pomieszczenie gospodarcze z piecem na gaz ale duża powierzchnia umożliwia również zastosowanie pieca na biomasę w przypadku gdy inwestorzy nie będą mieć przyłącza gazowego.Na poddaszu użytkowym znajdują się 3 przestronne pokoje dzienne. Duża sypialnia posiada osobną łazienkę oraz wyjście na taras które stanowi jednocześnie zadaszenie garażu. Dwie łazienki na poddaszu zapewniają komfort użytkowania szczególnie w porannych godzinach gdy domownicy przygotowują się do pracy lub szkoły. Duże okna balkonowe w pokojach oraz liczne okna dachowe zapewniają dużą ilość naturalnego światła oraz kontakt z otoczeniem. Bryłę urozmaicają betonowe zadaszenia nad wejściem oraz z boku domu. Duże pomieszczenia oraz prosta bryła przemawiają za wygodą jaką niesie wybór tego projektu.
Kondygnacje
Z poddaszem
Sypialnie
4
Łazienki
3
Salon
23,1 m²
Powierzchnia użytkowa / netto
121,53 m² / 175,62 m²
Minimalna działka
22,66 m × 16,46 m
Ogrzewanie
kocioł na gaz
Wentylacja
mechaniczna (rekuperacja)
Pokrycie dachu
blacha / blachodachówka / dachówka
Cena projektu
5 590 zł
Układ i działka

Rzuty i plan działki.

Parter, poddasze i podstawowe dane działki w jednym miejscu.

Parametry projektu

Parametry techniczne.

Najważniejsze dane techniczne, technologia i instalacje.

Powierzchnia i wymiary
Powierzchnia użytkowa / netto
121,53 m² / 175,62 m²
Powierzchnia zabudowy
132,48 m²
Powierzchnia dachu
157,52 m²
Wysokość domu
7,61 m
Kubatura
454,56 m³
Kąt nachylenia dachu
35°
Minimalne wymiary działki
22,66 m × 16,46 m
Szerokość elewacji frontowej
15,66 m
Głębokość budynku
8,46 m
Technologia i konstrukcja
Technologia
murowany
Materiały ścian
beton komórkowy / ceramika
Pokrycie dachu
blacha / blachodachówka / dachówka
Konstrukcja dachu
więźba tradycyjna
Konstrukcja stropu
gęstożebrowy
Układ kondygnacji
Z poddaszem
Garaż
Garaż jednostanowiskowy
Instalacje i energia
Instalacja grzewcza
kocioł na gaz
Instalacja CWU
kocioł na gaz / kolektory słoneczne
Rodzaj wentylacji
mechaniczna (rekuperacja)
Energia pierwotna (EP)
54,12 kWh/m²/rok
Energia końcowa (EK)
56,76 kWh/m²/rok
Koszt budowy

Koszty etapów budowy.

Etap Ceny średnie Ceny minimalne
Do stanu zero 144 969 zł 134 167 zł
Do stanu surowego otwartego 528 710 zł 489 317 zł
Do stanu surowego zamkniętego 673 679 zł 623 484 zł
Instalacje 101 052 zł 93 522 zł
Prace wykończeniowe 303 156 zł 280 567 zł
Razem 1 077 887 zł 997 573 zł
  • Czas trwania 60 minut
  • Dostępność Poniedziałek - sobota
    10:00 - 19:00
  • Forma spotkania Google Meet

Przed spotkaniem nasz doradca skontaktuje się z Tobą, aby potwierdzić termin konsultacji.

Nie chcesz czekać? Napisz do nas na WhatsApp.

Napisz na WhatsApp
Kalendarz

Umów bezpłatną konsultację.

Europe/Warsaw
Ładowanie...
Dostępne godziny

Wybierz dzień w kalendarzu.