Prosty, dom z dachem dwuspadowym, na wąską działkę z tarasem nad garażem od frontu.
Z299 to projekt domu z poddaszem użytkowym, dwuspadowym dachem i garażem jednostanowiskowym. Tworzy go prosta bryła, a ciepłe kolory na elewacjach podkreślają charakter oraz styl budynku.
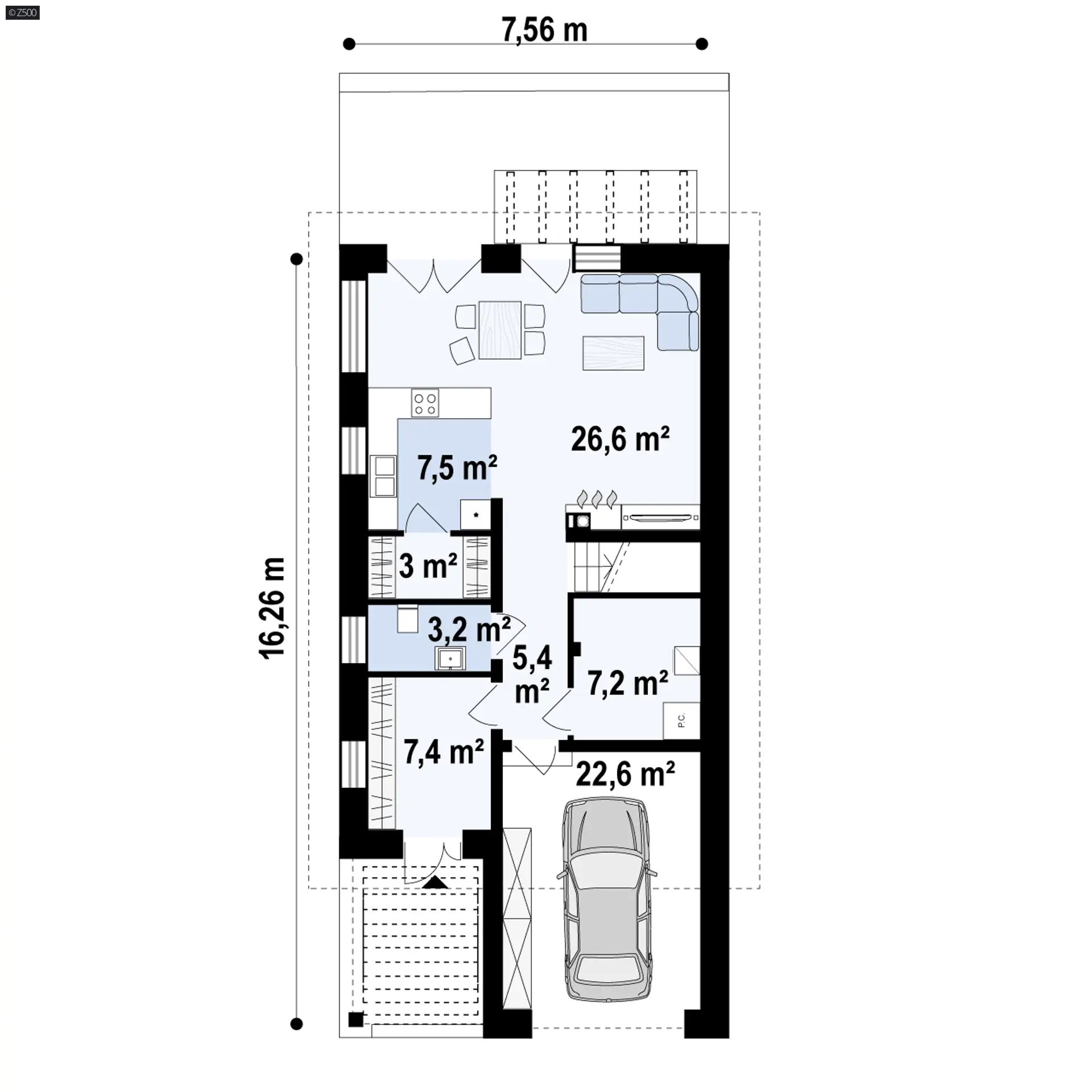
Parter to strefa dzienna domu. Zlokalizowano tu przestronny salon, który został połączony jednoprzestrzennie z jadalnią i kuchnią. W centralnej części domu umieszczono hol, który jest łącznikiem pomiędzy poszczególnymi pomieszczeniami, a dodatkowo posiada bezpośrednie przejście do garażu. Na parterze jest także wc, spore pomieszczenie gospodarcze oraz sień z miejscem na szafę wnękową. Piętro to część nocna domu. Zlokalizowano tu dużą sypialnię dla rodziców z osobną łazienkę i garderobę. Dwa pokoje dziecięce posiadają wyjścia na balkon, a łazienka pomieści prysznic i wannę.
Projekt Z299 to idealna propozycja dla osób poszukujących domu na wąską działkę.
Parter, poddasze i podstawowe dane działki w jednym miejscu.
Najważniejsze dane techniczne, technologia i instalacje.
| Etap | Ceny średnie | Ceny minimalne |
|---|---|---|
| Do stanu zero | 122 304 zł | 113 234 zł |
| Do stanu surowego otwartego | 446 052 zł | 412 972 zł |
| Do stanu surowego zamkniętego | 568 356 zł | 526 206 zł |
| Instalacje | 85 253 zł | 78 930 zł |
| Prace wykończeniowe | 255 760 zł | 236 792 zł |
| Razem | 909 369 zł | 841 928 zł |
Podgląd projektu bez przeładowania strony.
Wybierz inny dzień albo sprawdź kolejny dostępny termin.
Po potwierdzeniu wyślemy mail z potwierdzeniem i linkiem do Google Meet.