Zaplanuj Dom prowadzi inwestora od formalności i projektu domu do wyboru wykonawcy i przygotowania startu budowy.

Szybki kontakt

Telefon:
886 887 572
Obsługa:
Cała Polska, 100% online
Umów konsultację
Projekt domu Z92 GL2
Projekt domu

Z92 GL2

Wygodny dom z poddaszem, podwójnym garażem, dachem dwuspadowym i tarasem

Z poddaszem Dwuspadowy Garaż na 2 auta Tradycyjny
Opis projektu

Projekt w skrócie.

Z92 GL2 to zgrabny i funkcjonalny dom z poddaszem użytkowym. Prosta konstrukcja i zwarta bryła przekryta dachem dwuspadowym czyni go inwestycją tanią w budowie oraz późniejszej eksploatacji. Zaletą projektu jest duża kotłownia na paliwo stałe.Projekt można zmieścić także na węższej o 60cm działce likwidując wykusz.

Parter to strefa dzienna z przestronnym salonem, jadalnią w wykuszu oraz otwarta kuchnią i podręczną spiżarnią. Kolejne atuty tej kondygnacji to dodatkowy pokój oraz łazienka z oknem. Do budynku doprojektowano garaż dwustanowiskowy. Na poddaszu zaprojektowano trzy wygodne sypialnie, dwie o identycznej powierzchni z wyjściem na mały balkon nad wykuszem. Do dyspozycji mieszkańców jest także spora łazienka oraz wydzielona mała pralnia. Komfort użytkowania podnosi wysoka ścianka kolankowa - 100cm.

Z92 to komfortowy projekt dla rodziny ceniącej wygodę. Obszerny program funkcjonalny przy stosunkowo małej powierzchni to duża zaleta. Wkomponowany w zieleń działki stanie się wygodną rezydencją dla całej rodziny.

Kondygnacje
Z poddaszem
Sypialnie
4
Łazienki
2
Salon
28,04 m²
Powierzchnia użytkowa / netto
149,29 m² / 232,76 m²
Minimalna działka
26,06 m × 17,14 m
Ogrzewanie
kocioł na biomasę
Wentylacja
mechaniczna (rekuperacja)
Pokrycie dachu
dachówka
Cena projektu
4 770 zł
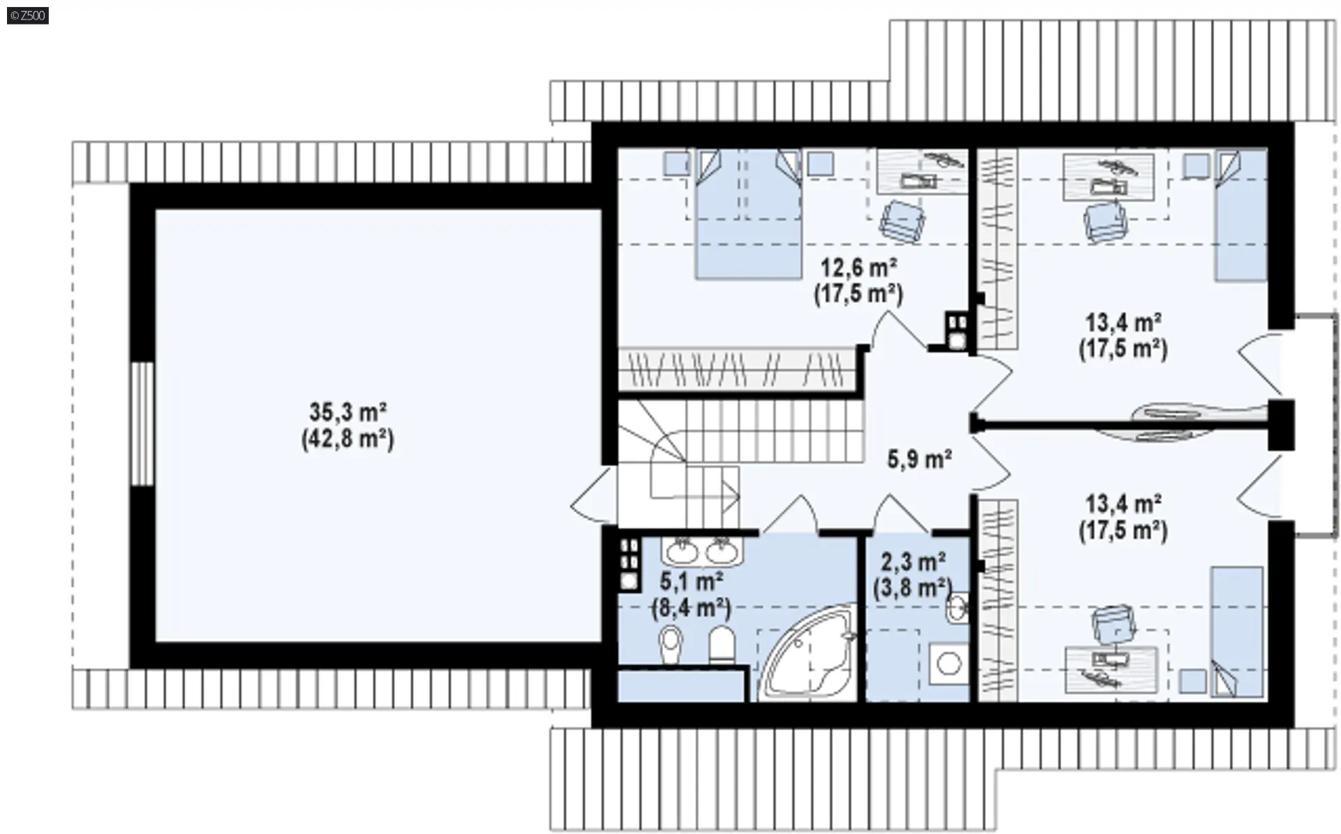
Układ i działka

Rzuty i plan działki.

Parter, poddasze i podstawowe dane działki w jednym miejscu.

Parametry projektu

Parametry techniczne.

Najważniejsze dane techniczne, technologia i instalacje.

Powierzchnia i wymiary
Powierzchnia użytkowa / netto
149,29 m² / 232,76 m²
Powierzchnia zabudowy
149,18 m²
Powierzchnia dachu
254,63 m²
Wysokość domu
8,25 m
Kubatura
586,13 m³
Kąt nachylenia dachu
40°
Minimalne wymiary działki
26,06 m × 17,14 m
Szerokość elewacji frontowej
18,06 m
Głębokość budynku
9,14 m
Technologia i konstrukcja
Technologia
murowany
Materiały ścian
beton komórkowy
Pokrycie dachu
dachówka
Konstrukcja dachu
więźba tradycyjna
Konstrukcja stropu
gęstożebrowy
Układ kondygnacji
Z poddaszem
Garaż
Garaż na 2 auta
Instalacje i energia
Instalacja grzewcza
kocioł na biomasę
Instalacja CWU
kocioł na biomasę / kolektory słoneczne
Rodzaj wentylacji
mechaniczna (rekuperacja)
Energia pierwotna (EP)
27,17 kWh/m²/rok
Energia końcowa (EK)
65,2 kWh/m²/rok
Koszt budowy

Koszty etapów budowy.

Etap Ceny średnie Ceny minimalne
Do stanu zero 189 601 zł 175 285 zł
Do stanu surowego otwartego 691 486 zł 639 275 zł
Do stanu surowego zamkniętego 881 087 zł 814 560 zł
Instalacje 132 163 zł 122 185 zł
Prace wykończeniowe 396 489 zł 366 553 zł
Razem 1 409 739 zł 1 303 298 zł
  • Czas trwania 60 minut
  • Dostępność Poniedziałek - sobota
    10:00 - 19:00
  • Forma spotkania Google Meet

Przed spotkaniem nasz doradca skontaktuje się z Tobą, aby potwierdzić termin konsultacji.

Nie chcesz czekać? Napisz do nas na WhatsApp.

Napisz na WhatsApp
Kalendarz

Umów bezpłatną konsultację.

Europe/Warsaw
Ładowanie...
Dostępne godziny

Wybierz dzień w kalendarzu.