Zaplanuj Dom prowadzi inwestora od formalności i projektu domu do wyboru wykonawcy i przygotowania startu budowy.

Szybki kontakt

Telefon:
886 887 572
Obsługa:
Cała Polska, 100% online
Umów konsultację
Projekt domu Zx145
Projekt domu

Zx145

Dom jednorodzinny z garażem jednostanowiskowym.

Z poddaszem Dwuspadowy Garaż jednostanowiskowy Nowoczesny
Opis projektu

Projekt w skrócie.

Zx145 jest propozycją domu , z półpiętrami, podpiwniczeniem i poddaszem użytkowym, tradycyjnym dachem dwuspadowym i garażem na półtora stanowiska. Powierzchnia użytkowa wynosi ok. 130 m2, a dodatkową zaletę stanowi fakt, iż może on zostać wybudowany na skarpie.

Bryła stanowi połączenie nowoczesności z tradycyjnym dachem dwuspadowym. Jej nowatorska forma została wyrażona w białych, prostopadłościennych formach brył, okalających dom dachem dwuspadowym. Całość podkreślono drewnianą elewacją i śnieżnym, białym tynkiem.

Duży atut stanowią trzy zewnętrzne tarasy. Pierwszy – ogrodowy - na parterze, drugi na poziomie pokoi sypialnianych i trzeci dostępny z sypialni rodziców. Szklane balustrady, prosta czysta forma obiektu, są niewątpliwie dodatnią cechą prezentowanego Państwu obiektu.

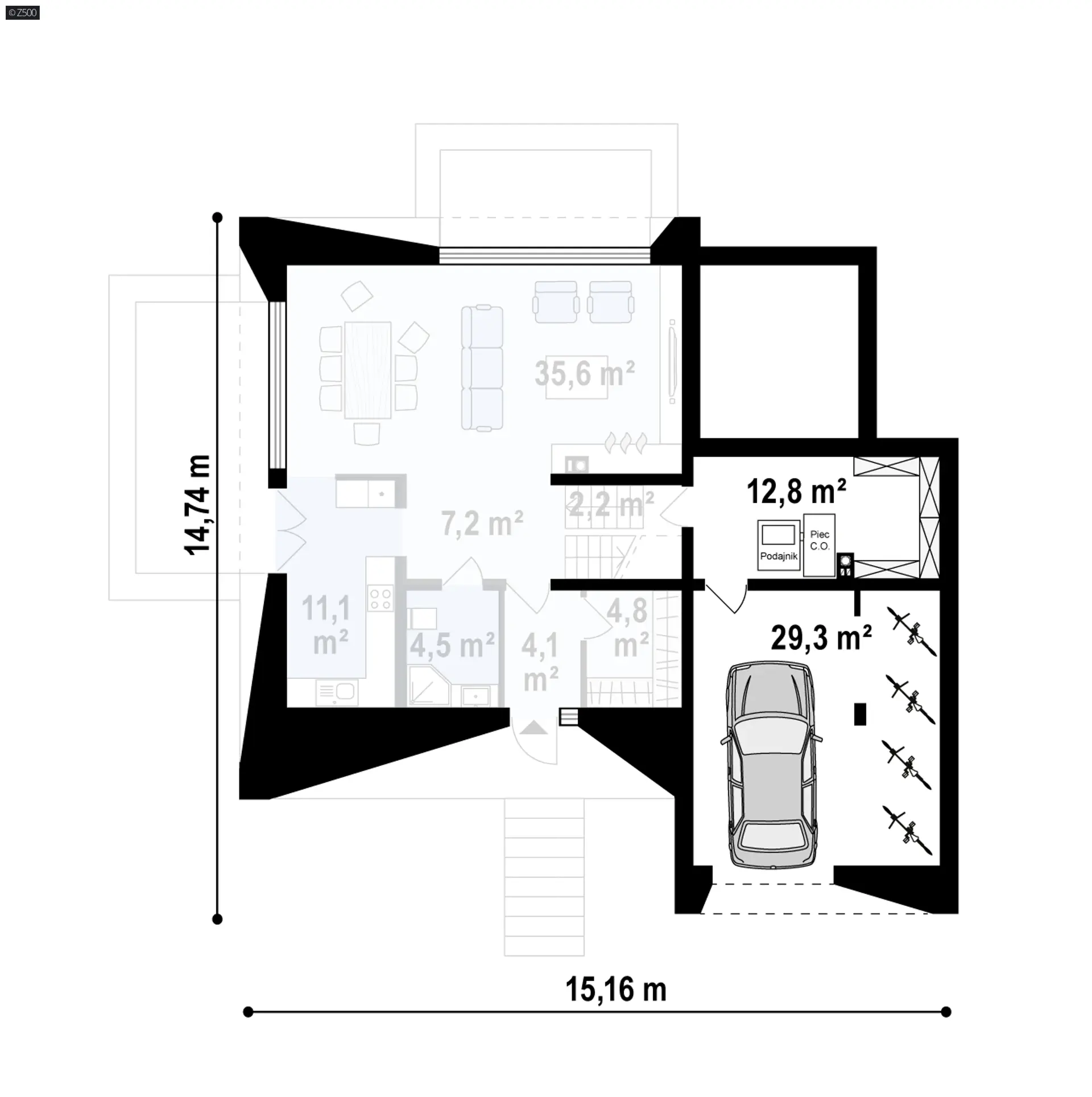
Położona w podpiwniczeniu powierzchnia to strefa gospodarcza. Znajdują się tam: spore pomieszczenie gospodarcze, jednostanowiskowy garaż z dodatkowym miejscem na ustawienie rowerów lub przeznaczenie na kącik majsterkowicza. Wielbiciele jednośladów będą mogli przechowywać w nim dodatkowo dwa motory.

Poziom 0 to strefa dzienna do której, poprzez sień, wygodną garderobę i hol, prowadzi wejście frontowe. Mieszczą się tam kuchnia z drzwiami balkonowymi prowadzącymi na taras, atrakcyjny salon oraz jadalnia, wspólnie stanowiące strefę dzienną. Rozsuwane szklane drzwi tarasowe idealnie powiększą strefę podejmowania gości, podczas obchodzonych uroczystości.

Schody w holu prowadzą na półpiętro z częścią sypialnianą, która zawiera 2 pokoje, wspólną łazienkę, a także taras. Łącznie z najwyższą częścią domu - poddaszem użytkowym, na którym zaprojektowano sypialnię dla rodziców, stanowią naszą domową przystań.

Zx145 dedykowany jest dla rodziny z dwojgiem dzieci, lubiącej nowoczesną architekturę i ceniącej indywidualne rozwiązania.

Kondygnacje
Z poddaszem
Sypialnie
3
Łazienki
3
Salon
35,58 m²
Powierzchnia użytkowa / netto
131,39 m² / 184,35 m²
Minimalna działka
21,56 m × 22,96 m
Ogrzewanie
kocioł na biomasę
Wentylacja
mechaniczna (rekuperacja)
Pokrycie dachu
gont / blacha / folia PVC / papa bitumiczna / blachodachówka / dachówka
Cena projektu
7 390 zł
Układ i działka

Rzuty i plan działki.

Parter, poddasze i podstawowe dane działki w jednym miejscu.

Parametry projektu

Parametry techniczne.

Najważniejsze dane techniczne, technologia i instalacje.

Powierzchnia i wymiary
Powierzchnia użytkowa / netto
131,39 m² / 184,35 m²
Powierzchnia zabudowy
178,37 m²
Powierzchnia dachu
100,39 m²
Wysokość domu
9,15 m
Kubatura
508,85 m³
Kąt nachylenia dachu
42°
Minimalne wymiary działki
21,56 m × 22,96 m
Szerokość elewacji frontowej
15,16 m
Głębokość budynku
15,76 m
Technologia i konstrukcja
Technologia
murowany
Materiały ścian
beton komórkowy / ceramika
Pokrycie dachu
gont / blacha / folia PVC / papa bitumiczna / blachodachówka / dachówka
Konstrukcja dachu
więźba tradycyjna / żelbetowy (stropodach)
Konstrukcja stropu
żelbetowy
Układ kondygnacji
Z poddaszem
Garaż
Garaż jednostanowiskowy
Instalacje i energia
Instalacja grzewcza
kocioł na biomasę
Instalacja CWU
kocioł na biomasę / kolektory słoneczne
Rodzaj wentylacji
mechaniczna (rekuperacja)
Energia pierwotna (EP)
24,27 kWh/m²/rok
Energia końcowa (EK)
59,06 kWh/m²/rok

Budujemy domy. Solidnie i z myślą o kolejnych dekadach.

Zajmujemy się kompleksową budową domów i odpowiadamy za całość inwestycji — od pierwszych prac na działce aż po odbiór kluczy.

Kompleksowa realizacja od działki po odbiór domu

Prowadzimy cały proces budowy i odpowiadamy za każdy etap inwestycji, tak żebyś nie musiał koordynować osobno ekip, dostaw i decyzji na placu budowy.

Materiały wybierane wspólnie z klientem

Każdą realizację zaczynamy od rozmowy o materiałach. Dobieramy je wspólnie tak, żeby dom był trwały, energooszczędny i komfortowy przez lata. Doradzamy, tłumaczymy i pomagamy podjąć najlepszą decyzję.

Jakość wykonania, terminy i stały kontakt

Twój dom traktujemy jak naszą wizytówkę — dlatego dbamy o jakość wykonania na każdym etapie, dotrzymujemy terminów i jesteśmy z Tobą przez cały czas trwania budowy.

Wizualizacja nowoczesnego domu parterowego z płaskim dachem, dużymi przeszkleniami i uporządkowanym ogrodem
  • Czas trwania 120 minut
  • Dostępność Poniedziałek - sobota
    10:00 - 21:00
  • Forma spotkania Google Meet

Przed spotkaniem nasz doradca skontaktuje się z Tobą, aby potwierdzić termin konsultacji.

Nie chcesz czekać? Napisz do nas na WhatsApp.

Napisz na WhatsApp
Kalendarz

Umów bezpłatną konsultację.

Europe/Warsaw
Ładowanie...
Dostępne godziny

Wybierz dzień w kalendarzu.