Zaplanuj Dom prowadzi inwestora od formalności i projektu domu do wyboru wykonawcy i przygotowania startu budowy.

Szybki kontakt

Telefon:
886 887 572
Obsługa:
Cała Polska, 100% online
Umów konsultację
Projekt domu HK83
Projekt domu

HK83

HK83 to projekt domu piętrowy o powierzchni użytkowej 231,11 m² z układem obejmującym 4 sypialnie, 3 łazienki, garaż na 2 auta i dachem pła…

Piętrowy Płaski Garaż na 2 auta Nowoczesny
Opis projektu

Projekt w skrócie.

HK83 to projekt domu piętrowy o powierzchni użytkowej 231,11 m² z układem obejmującym 4 sypialnie, 3 łazienki, garaż na 2 auta i dachem płaski. W projekcie przewidziano m.in. pralnia, spiżarnia, kominek, master bedroom, pomieszczenie rekreacyjne.

Kondygnacje
Piętrowy
Sypialnie
4
Łazienki
3
Powierzchnia użytkowa / netto
231,11 m²
Minimalna działka
23,2 m × 23,35 m
Ogrzewanie
gazowe - piec kondensacyjny oraz ogrzewanie podłogowe w salonie, jadalni, kuchni, łazienkach, komunikacji, pralni, garderobach i wiatrołapie, tradycyjne grzejniki w pozostałych pomieszczeniach
Wentylacja
mechaniczna z rekuperacją
Pokrycie dachu
stropodach pełny kryty membraną EPDM
Cena projektu
9 490 zł
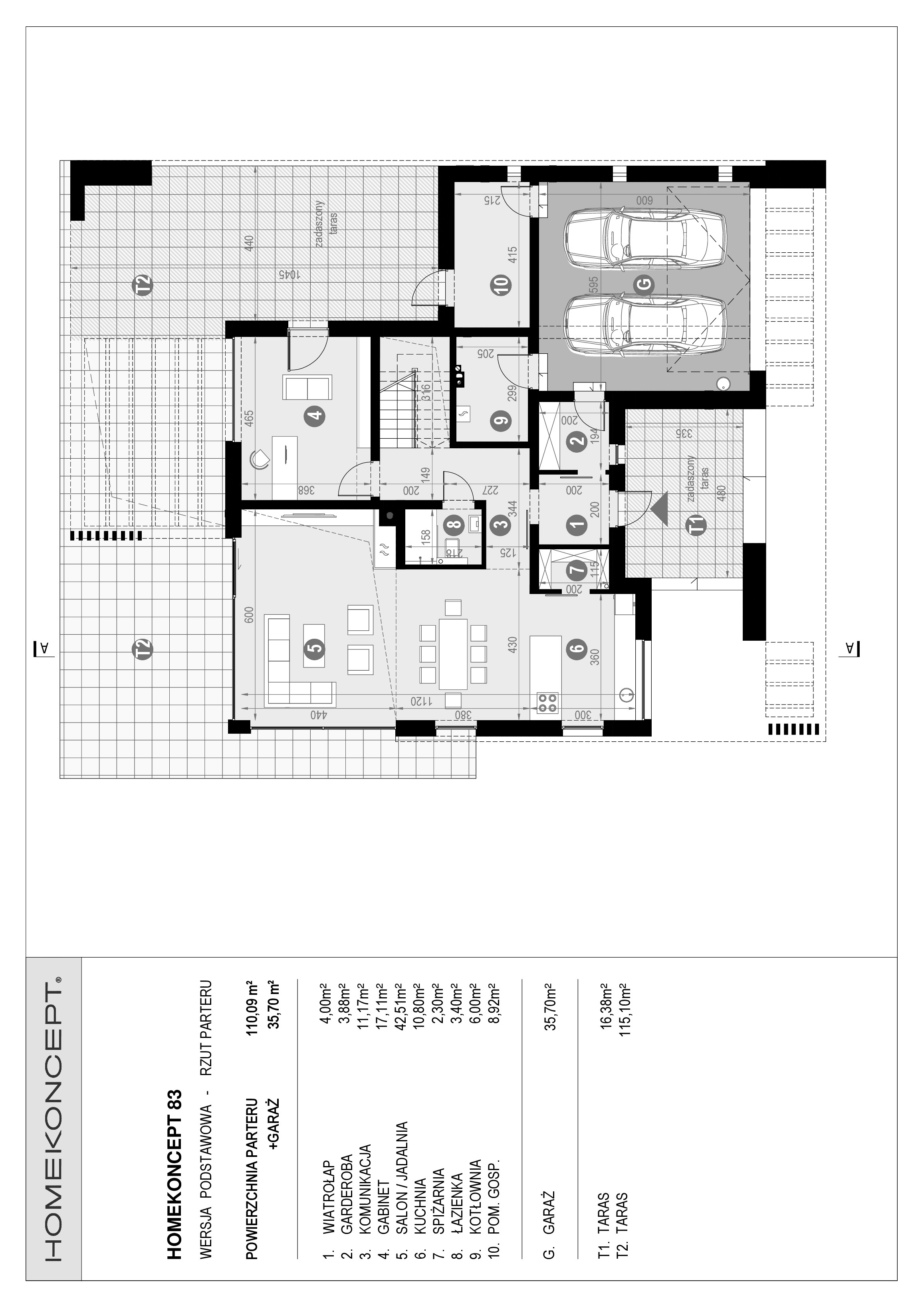
Układ i działka

Rzuty i plan działki.

Parter, poddasze i podstawowe dane działki w jednym miejscu.

Parametry projektu

Parametry techniczne.

Najważniejsze dane techniczne, technologia i instalacje.

Powierzchnia i wymiary
Powierzchnia użytkowa / netto
231,11 m²
Powierzchnia zabudowy
225,82 m²
Powierzchnia dachu
156 m²
Wysokość domu
7,12 m
Kubatura
1 460 m³
Minimalne wymiary działki
23,2 m × 23,35 m
Szerokość elewacji frontowej
16,5 m
Głębokość budynku
21,45 m
Technologia i konstrukcja
Technologia
murowany
Materiały ścian
dwuwarstwowe - pustak ceramiczny 25 cm + styropian Termo Organika 20 cm
Pokrycie dachu
stropodach pełny kryty membraną EPDM
Konstrukcja stropu
żelbetowy wylewany
Układ kondygnacji
Piętrowy
Garaż
Garaż na 2 auta
Instalacje i energia
Instalacja grzewcza
gazowe - piec kondensacyjny oraz ogrzewanie podłogowe w salonie, jadalni, kuchni, łazienkach, komunikacji, pralni, garderobach i wiatrołapie, tradycyjne grzejniki w pozostałych pomieszczeniach
Instalacja CWU
gazowe - piec kondensacyjny oraz ogrzewanie podłogowe w salonie, jadalni, kuchni, łazienkach, komunikacji, pralni, garderobach i wiatrołapie, tradycyjne grzejniki w pozostałych pomieszczeniach
Instalacje dodatkowe
kominek
Rodzaj wentylacji
mechaniczna z rekuperacją
Energia pierwotna (EP)
69,94 kWh/m²/rok
Energia końcowa (EK)
16,81 kWh/m²/rok

Budujemy domy. Solidnie i z myślą o kolejnych dekadach.

Zajmujemy się kompleksową budową domów i odpowiadamy za całość inwestycji — od pierwszych prac na działce aż po odbiór kluczy.

Wizualizacja nowoczesnego domu parterowego z płaskim dachem, dużymi przeszkleniami i uporządkowanym ogrodem

Kompleksowa realizacja od działki po odbiór domu

Prowadzimy cały proces budowy i odpowiadamy za każdy etap inwestycji, tak żebyś nie musiał koordynować osobno ekip, dostaw i decyzji na placu budowy.

Materiały wybierane wspólnie z klientem

Każdą realizację zaczynamy od rozmowy o materiałach. Dobieramy je wspólnie tak, żeby dom był trwały, energooszczędny i komfortowy przez lata. Doradzamy, tłumaczymy i pomagamy podjąć najlepszą decyzję.

Jakość wykonania, terminy i stały kontakt

Twój dom traktujemy jak naszą wizytówkę — dlatego dbamy o jakość wykonania na każdym etapie, dotrzymujemy terminów i jesteśmy z Tobą przez cały czas trwania budowy.

  • Czas trwania 60 minut
  • Dostępność Poniedziałek - sobota
    10:00 - 19:00
  • Forma spotkania Google Meet

Przed spotkaniem nasz doradca skontaktuje się z Tobą, aby potwierdzić termin konsultacji.

Nie chcesz czekać? Napisz do nas na WhatsApp.

Napisz na WhatsApp
Kalendarz

Umów bezpłatną konsultację.

Europe/Warsaw
Ładowanie...
Dostępne godziny

Wybierz dzień w kalendarzu.