Zaplanuj Dom prowadzi inwestora od formalności i projektu domu do wyboru wykonawcy i przygotowania startu budowy.

Szybki kontakt

Telefon:
886 887 572
Obsługa:
Cała Polska, 100% online
Umów konsultację
Projekt domu Z296
Projekt domu

Z296

Przytulny dom jednorodzinny z użytkowym poddaszem, na wąską działkę

Z poddaszem Dwuspadowy Bez garażu Na wąską działkę
Opis projektu

Projekt w skrócie.

Z296 to elegancka propozycja współczesnego domu z poddaszem użytkowym i dwuspadowym dachem. Projekt wyróżnia się prostą formą tanią w budowie oraz utrzymaniu.

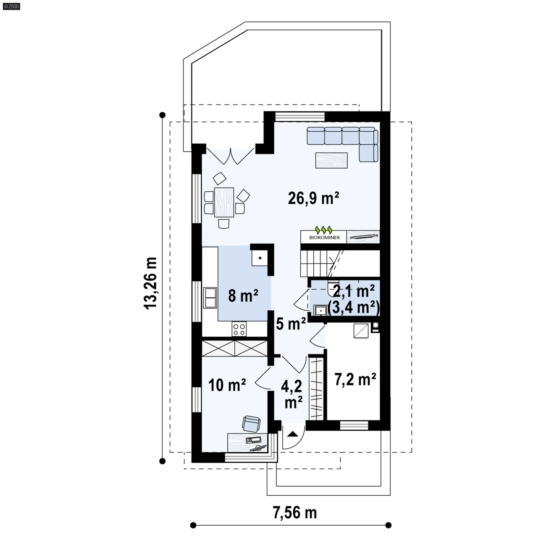
Największą zaletą tego projektu jest jasny salon połączony jednoprzestrzennie z jadalnią. Kuchnia delikatnie wydzielona powiększa przestrzeń dzienną. Dodatkowo na parterze zlokalizowano pokój, który może służyć jako gabinet bądź pokój dla gości, łazienkę i pomieszczenie gospodarcze dostępne z holu. Na piętrze znajdują się trzy spore sypialnie, w tym jedna z osobną toaletą i duża łazienka, która pomieści wannę i prysznic. Z każdej sypialni jest osobne wyjście na balkon.

Z296 to oryginalny projekt domu. Nie tylko prezentuje się wspaniale, ale także jest bardzo funkcjonalny i wygodny.


Kondygnacje
Z poddaszem
Sypialnie
3
Łazienki
3
Salon
26,91 m²
Powierzchnia użytkowa / netto
97,23 m² / 126,85 m²
Minimalna działka
15,56 m × 21,26 m
Ogrzewanie
kocioł na gaz
Wentylacja
mechaniczna (rekuperacja)
Pokrycie dachu
gont / blacha / blachodachówka / dachówka
Cena projektu
4 700 zł
Układ i działka

Rzuty i plan działki.

Parter, poddasze i podstawowe dane działki w jednym miejscu.

Parametry projektu

Parametry techniczne.

Najważniejsze dane techniczne, technologia i instalacje.

Powierzchnia i wymiary
Powierzchnia użytkowa / netto
97,23 m² / 126,85 m²
Powierzchnia zabudowy
91,97 m²
Powierzchnia dachu
135,27 m²
Wysokość domu
7,6 m
Kubatura
328,89 m³
Kąt nachylenia dachu
37°
Minimalne wymiary działki
15,56 m × 21,26 m
Szerokość elewacji frontowej
7,56 m
Głębokość budynku
13,26 m
Technologia i konstrukcja
Technologia
murowany
Materiały ścian
beton komórkowy / ceramika
Pokrycie dachu
gont / blacha / blachodachówka / dachówka
Konstrukcja dachu
więźba tradycyjna
Konstrukcja stropu
gęstożebrowy
Układ kondygnacji
Z poddaszem
Garaż
Bez garażu
Instalacje i energia
Instalacja grzewcza
kocioł na gaz
Instalacja CWU
kocioł na gaz / kolektory słoneczne
Rodzaj wentylacji
mechaniczna (rekuperacja)
Energia pierwotna (EP)
60,12 kWh/m²/rok
Energia końcowa (EK)
63,45 kWh/m²/rok
Koszt budowy

Koszty etapów budowy.

Etap Ceny średnie Ceny minimalne
Do stanu zero 106 744 zł 98 942 zł
Do stanu surowego otwartego 389 302 zł 360 848 zł
Do stanu surowego zamkniętego 496 046 zł 459 790 zł
Instalacje 74 407 zł 68 969 zł
Prace wykończeniowe 223 221 zł 206 906 zł
Razem 793 674 zł 735 665 zł
  • Czas trwania 60 minut
  • Dostępność Poniedziałek - sobota
    10:00 - 19:00
  • Forma spotkania Google Meet

Przed spotkaniem nasz doradca skontaktuje się z Tobą, aby potwierdzić termin konsultacji.

Nie chcesz czekać? Napisz do nas na WhatsApp.

Napisz na WhatsApp
Kalendarz

Umów bezpłatną konsultację.

Europe/Warsaw
Ładowanie...
Dostępne godziny

Wybierz dzień w kalendarzu.