Zaplanuj Dom prowadzi inwestora od formalności i projektu domu do wyboru wykonawcy i przygotowania startu budowy.

Szybki kontakt

Telefon:
886 887 572
Obsługa:
Cała Polska, 100% online
Umów konsultację
Projekt domu Zb26
Projekt domu

Zb26

Tradycyjny bliźniak z gabinetem na parterze i 3 sypialniami.

Z poddaszem Dwuspadowy Bez garażu Tradycyjny
Opis projektu

Projekt w skrócie.

Zb26 to współczesny bliźniak z dachem dwuspadowym oraz niewielkimi okapami. Od frontu umieszczono betonowe elementy będące zadaszeniem zarówno wejścia jak i tarasu od strony ogrodu. Elewację zaprojektowano w ciemnej cegle klinkierowej oraz czarnym betonie dodajcąym elegancji.

Kolorystyka elewacji jest modna i nowoczesna. Powierzchnia domu nie przekracza 110 m2.

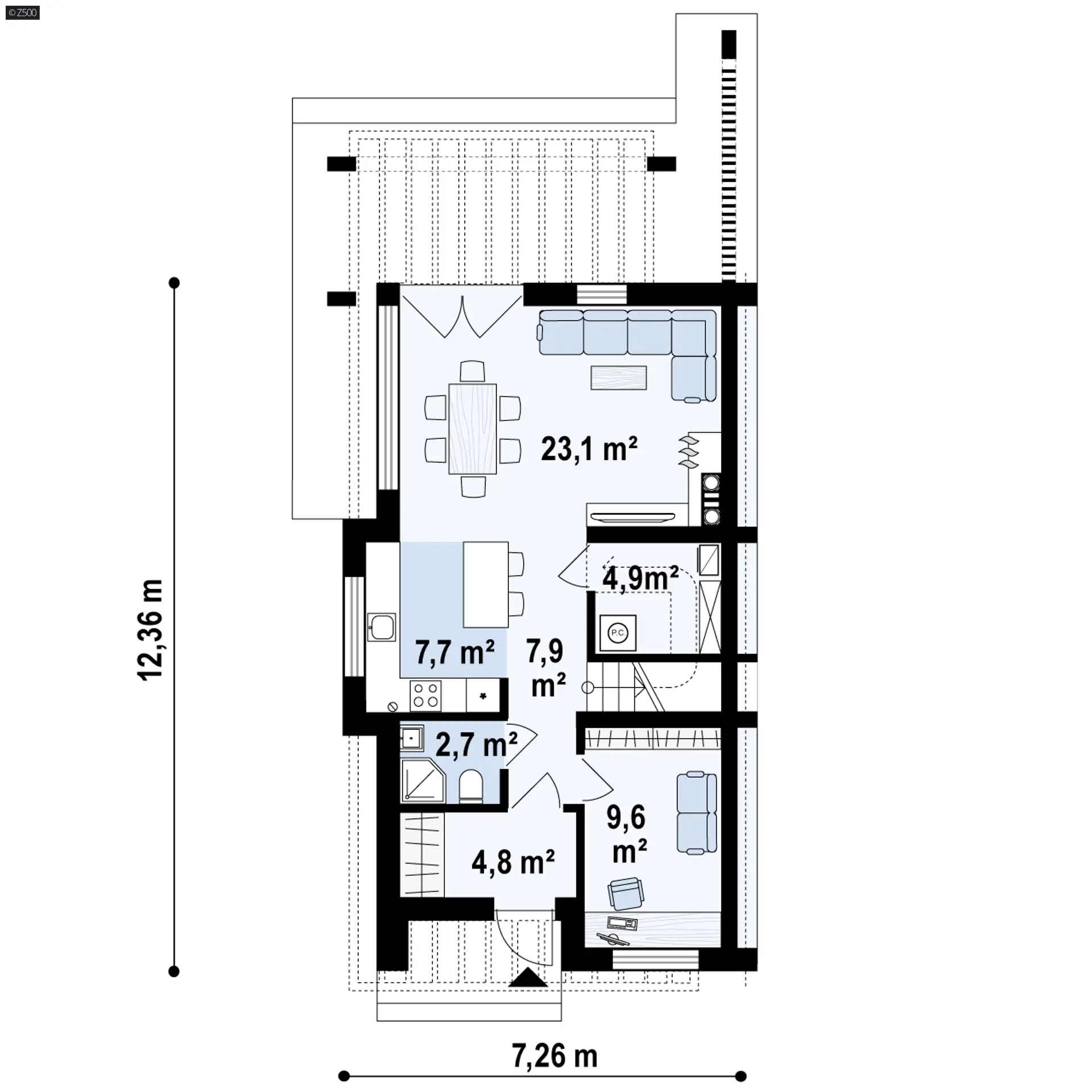
Wejście do domu umieszczono pośrodku frontowej elewacji, pod niewielkim zadaszeniem. Z lewej stronie znajduje się niewielka łazienka a zaraz za nią kuchnia z wyspą przy której rano możemy zjeść szybkie śniadanie czy wypić popołudniową kawę z koleżanką. Salon z jadalnią stanowi tył parteru. Duże przeszklenia rozciągające się do samej podłogi połączą naszą strefę dzienną z ogrodem oraz dostarczą dużą ilość światła, natomiast kominek ociepli chłodne zimowe dni. Dodatkowym atutem jest gabinet, który może pełnić funkcje pokoju gościnnego.

Poddasze to trzy ustawne sypialnie z czego jedna posiada własna garderobę. Duża łazienka pomieści zarówno wannę, prysznic oraz pralkę. Schowek dostępny z holu doceni każda Pani domu. Może pełnić miejsce głębokiej szafy na pościele i ręczniki lub być miejscem przechowywania odkurzacza oraz innego sprzętu.

Projekt Zb26 dedykowany jest dla osób poszukujących niewielkiego domu do zabudowy bliźniaczej lub domu wolnostojącego na wąską działkę.

Kondygnacje
Z poddaszem
Sypialnie
3
Łazienki
2
Salon
23,05 m²
Powierzchnia użytkowa / netto
98,01 m² / 121,44 m²
Minimalna działka
14,26 m × 20,36 m
Ogrzewanie
kocioł na gaz
Wentylacja
mechaniczna (rekuperacja)
Pokrycie dachu
gont / blachodachówka / dachówka
Cena projektu
4 790 zł
Układ i działka

Rzuty i plan działki.

Parter, poddasze i podstawowe dane działki w jednym miejscu.

Parametry projektu

Parametry techniczne.

Najważniejsze dane techniczne, technologia i instalacje.

Powierzchnia i wymiary
Powierzchnia użytkowa / netto
98,01 m² / 121,44 m²
Powierzchnia zabudowy
84,69 m²
Powierzchnia dachu
110,75 m²
Wysokość domu
8,9 m
Kubatura
337,41 m³
Kąt nachylenia dachu
35°
Minimalne wymiary działki
14,26 m × 20,36 m
Szerokość elewacji frontowej
7,26 m
Głębokość budynku
12,36 m
Technologia i konstrukcja
Technologia
murowany
Materiały ścian
beton komórkowy / ceramika
Pokrycie dachu
gont / blachodachówka / dachówka
Konstrukcja dachu
więźba tradycyjna
Konstrukcja stropu
gęstożebrowy
Układ kondygnacji
Z poddaszem
Garaż
Bez garażu
Instalacje i energia
Instalacja grzewcza
kocioł na gaz
Instalacja CWU
kocioł na gaz
Rodzaj wentylacji
mechaniczna (rekuperacja)
Energia pierwotna (EP)
61,02 kWh/m²/rok
Energia końcowa (EK)
45,09 kWh/m²/rok
Koszt budowy

Koszty etapów budowy.

Etap Ceny średnie Ceny minimalne
Do stanu zero 101 073 zł 93 802 zł
Do stanu surowego otwartego 368 621 zł 342 102 zł
Do stanu surowego zamkniętego 469 694 zł 435 904 zł
Instalacje 70 454 zł 65 385 zł
Prace wykończeniowe 211 362 zł 196 156 zł
Razem 751 510 zł 697 445 zł
  • Czas trwania 60 minut
  • Dostępność Poniedziałek - sobota
    10:00 - 19:00
  • Forma spotkania Google Meet

Przed spotkaniem nasz doradca skontaktuje się z Tobą, aby potwierdzić termin konsultacji.

Nie chcesz czekać? Napisz do nas na WhatsApp.

Napisz na WhatsApp
Kalendarz

Umów bezpłatną konsultację.

Europe/Warsaw
Ładowanie...
Dostępne godziny

Wybierz dzień w kalendarzu.