Zaplanuj Dom prowadzi inwestora od formalności i projektu domu do wyboru wykonawcy i przygotowania startu budowy.

Szybki kontakt

Telefon:
886 887 572
Obsługa:
Cała Polska, 100% online
Umów konsultację
Projekt domu Z431
Projekt domu

Z431

Ekonomiczny w budowie dom na wąską działkę z dachem dwuspadowym i 3 sypialniami

Z poddaszem Dwuspadowy Bez garażu Na wąską działkę
Opis projektu

Projekt w skrócie.

Jedna z wielu propozycji Z500, w której udowadniamy, że wąska działka nie jest problemem lecz możliwością. Z431 powstał właśnie z myślą o wyjściu naprzeciw potrzebom klientów, którzy posiadają wąskie działki. Osoby, które pragną stać się właścicielami domu z pełnym piętrem, o powierzchni niecałych 110m2, zachęcamy do zwrócenia uwagi na ten właśnie projekt.  Jedna elewacja nie posiada przeszkleń, dzięki czemu możemy pobudować opisywany dom w odległości już 1,5 m z jednej strony od granicy działki sąsiada, jeżeli działka ma poniżej 16m szerokości.  Elementy nadające budynkowi charakteru to dach dwuspadowy z kalenicą prostopadłą do drogi. Wykończony blachą na rąbek schodzi do samej ziemi na elewacji pełnej oraz do zadaszenia tarasu po drugiej stronie. Na elewacji, prócz wspomnianej blachy zastosowano również drewno oraz stiuk w kolorze jasnego betonu. Proste zadaszenia przełamują bryłę, która posiada wysoką ściankę kolankową a jednocześnie daje schronienie przed deszczem czy słońcem.

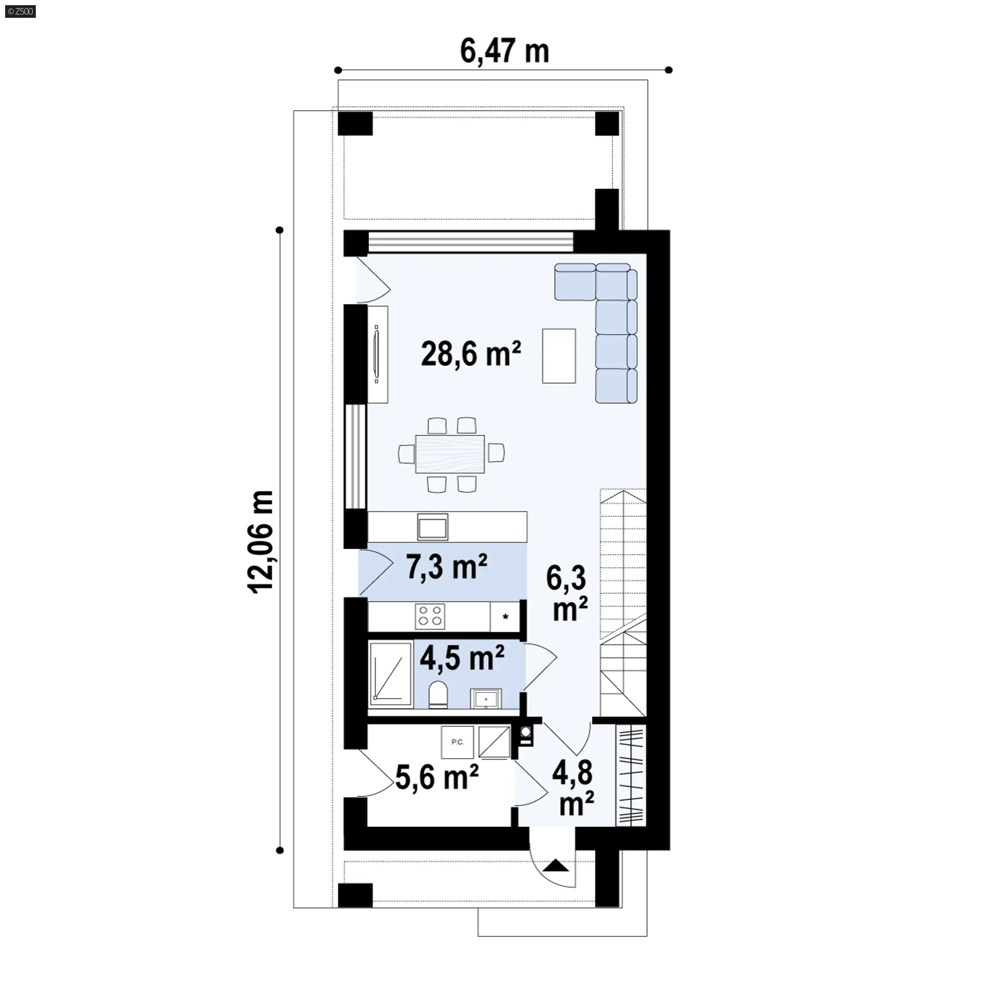
Parter - Zadaszone wejście prowadzi do sieni, w której uwzględniono miejsce na szafę po prawej stronie, zaś wejście do pomieszczenia gospodarczego znajdziemy po stronie lewej. Znajdziemy tu również przestronną łazienkę z prysznicem oraz otwartą przestrzeń dzienną. Okna do samej podłogi doskonale oświetla pomieszczenie z dwóch stron. Pół-wyspa kuchenna oddziela strefę wypoczynkową od kuchennej. 

Piętro - Na piętrze znajdują się 3 przestronne pokoje. Zaprojektowano tu nie okna kolankowe, aby jeszcze lepiej doświetlić pomieszczenia i dać ich właścicielom widok na otoczenie. Przestronna łazienka pomieści dużą wannę, pralkę a nawet dwie umywalki.

Z431 jest projektem dedykowanym dla rodzin będących właścicielami wąskiej działki. Przy szerokości poniżej 16m można zastosować odległość od sąsiada 1,5m przy ścianie pełnej. 

Kondygnacje
Z poddaszem
Sypialnie
3
Łazienki
2
Salon
28,63 m²
Powierzchnia użytkowa / netto
107,27 m² / 115,87 m²
Minimalna działka
13,36 m × 20,06 m
Ogrzewanie
kocioł na gaz
Wentylacja
mechaniczna (rekuperacja)
Pokrycie dachu
gont / blacha / blachodachówka / dachówka
Cena projektu
4 870 zł
Układ i działka

Rzuty i plan działki.

Parter, poddasze i podstawowe dane działki w jednym miejscu.

Parametry projektu

Parametry techniczne.

Najważniejsze dane techniczne, technologia i instalacje.

Powierzchnia i wymiary
Powierzchnia użytkowa / netto
107,27 m² / 115,87 m²
Powierzchnia zabudowy
78,4 m²
Powierzchnia dachu
97,29 m²
Wysokość domu
7,66 m
Kubatura
311,37 m³
Kąt nachylenia dachu
35°
Minimalne wymiary działki
13,36 m × 20,06 m
Szerokość elewacji frontowej
6,47 m
Głębokość budynku
15,46 m
Technologia i konstrukcja
Technologia
murowany
Materiały ścian
beton komórkowy / ceramika
Pokrycie dachu
gont / blacha / blachodachówka / dachówka
Konstrukcja dachu
więźba tradycyjna
Konstrukcja stropu
gęstożebrowy
Układ kondygnacji
Z poddaszem
Garaż
Bez garażu
Instalacje i energia
Instalacja grzewcza
kocioł na gaz
Instalacja CWU
kocioł na gaz
Rodzaj wentylacji
mechaniczna (rekuperacja)
Energia pierwotna (EP)
62,04 kWh/m²/rok
Energia końcowa (EK)
39,52 kWh/m²/rok
Koszt budowy

Koszty etapów budowy.

Etap Ceny średnie Ceny minimalne
Do stanu zero 101 476 zł 94 349 zł
Do stanu surowego otwartego 370 089 zł 344 099 zł
Do stanu surowego zamkniętego 471 565 zł 438 448 zł
Instalacje 70 735 zł 65 768 zł
Prace wykończeniowe 212 204 zł 197 301 zł
Razem 754 504 zł 701 517 zł
  • Czas trwania 60 minut
  • Dostępność Poniedziałek - sobota
    10:00 - 19:00
  • Forma spotkania Google Meet

Przed spotkaniem nasz doradca skontaktuje się z Tobą, aby potwierdzić termin konsultacji.

Nie chcesz czekać? Napisz do nas na WhatsApp.

Napisz na WhatsApp
Kalendarz

Umów bezpłatną konsultację.

Europe/Warsaw
Ładowanie...
Dostępne godziny

Wybierz dzień w kalendarzu.