Zaplanuj Dom prowadzi inwestora od formalności i projektu domu do wyboru wykonawcy i przygotowania startu budowy.

Szybki kontakt

Telefon:
886 887 572
Obsługa:
Cała Polska, 100% online
Umów konsultację
Projekt domu Zx167
Projekt domu

Zx167

Nowoczesny dom piętrowy z płaskim dachem, wiatą na 2 auta oraz gabinetem.

Piętrowy Płaski Bez garażu Nowoczesny
Opis projektu

Projekt w skrócie.

Zx167 to niewielki, nowoczesny dom robiący duże wrażenie. Elewacja budynku została zaprojektowana w ciemnych barwach. Połączono kamień z betonowymi płytami oraz ozdobną, podświetloną miedzianą ścianą. W całym domu zastosowano duże przeszklenia. Nie zapomniano o zadaszeniu wejścia, tarasów oraz miejsc na postój samochodów. Dom ma być nowoczesny, praktyczny oraz wyróżniać się wśród sąsiadów.

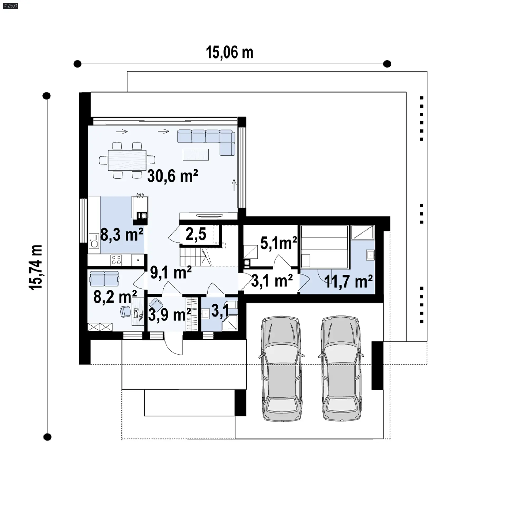
W parterze zaprojektowano otwartą część dzienną przeszkloną na ogród. Pomieszczenia praktyczne jak gabinet, mogący pełnić funkcję pokoju gościnnego, łazienkę, PG oraz miejsce na saunę. Pod schodami zagospodarowano miejsce na schowek mogący pełnić funkcję spiżarni.

Piętro domu to dwie, przestronne sypialnie z prywatną łazienką i garderobą oraz pralnia dostępna od holu. Dodatkowym atutem jest przestronny taras dostępny z pokoju od frontu.

Kondygnacje
Piętrowy
Sypialnie
2
Łazienki
3
Salon
30,61 m²
Powierzchnia użytkowa / netto
142,86 m² / 153,6 m²
Minimalna działka
22,06 m × 21,36 m
Ogrzewanie
kocioł na gaz
Wentylacja
mechaniczna (rekuperacja)
Pokrycie dachu
folia PVC / papa bitumiczna
Cena projektu
7 340 zł
Układ i działka

Rzuty i plan działki.

Parter, poddasze i podstawowe dane działki w jednym miejscu.

Parametry projektu

Parametry techniczne.

Najważniejsze dane techniczne, technologia i instalacje.

Powierzchnia i wymiary
Powierzchnia użytkowa / netto
142,86 m² / 153,6 m²
Powierzchnia zabudowy
121,03 m²
Powierzchnia dachu
189,32 m²
Wysokość domu
7,33 m
Kubatura
459,07 m³
Kąt nachylenia dachu
Minimalne wymiary działki
22,06 m × 21,36 m
Szerokość elewacji frontowej
16,65 m
Głębokość budynku
16,86 m
Technologia i konstrukcja
Technologia
murowany
Materiały ścian
beton komórkowy / ceramika
Pokrycie dachu
folia PVC / papa bitumiczna
Konstrukcja dachu
żelbetowy (stropodach)
Konstrukcja stropu
żelbetowy
Układ kondygnacji
Piętrowy
Garaż
Bez garażu
Instalacje i energia
Instalacja grzewcza
kocioł na gaz
Instalacja CWU
kocioł na gaz / kolektory słoneczne
Rodzaj wentylacji
mechaniczna (rekuperacja)
Energia pierwotna (EP)
63,1 kWh/m²/rok
Energia końcowa (EK)
55,45 kWh/m²/rok

Budujemy domy. Solidnie i z myślą o kolejnych dekadach.

Zajmujemy się kompleksową budową domów i odpowiadamy za całość inwestycji — od pierwszych prac na działce aż po odbiór kluczy.

Wizualizacja nowoczesnego domu parterowego z płaskim dachem, dużymi przeszkleniami i uporządkowanym ogrodem

Kompleksowa realizacja od działki po odbiór domu

Prowadzimy cały proces budowy i odpowiadamy za każdy etap inwestycji, tak żebyś nie musiał koordynować osobno ekip, dostaw i decyzji na placu budowy.

Materiały wybierane wspólnie z klientem

Każdą realizację zaczynamy od rozmowy o materiałach. Dobieramy je wspólnie tak, żeby dom był trwały, energooszczędny i komfortowy przez lata. Doradzamy, tłumaczymy i pomagamy podjąć najlepszą decyzję.

Jakość wykonania, terminy i stały kontakt

Twój dom traktujemy jak naszą wizytówkę — dlatego dbamy o jakość wykonania na każdym etapie, dotrzymujemy terminów i jesteśmy z Tobą przez cały czas trwania budowy.

  • Czas trwania 60 minut
  • Dostępność Poniedziałek - sobota
    10:00 - 19:00
  • Forma spotkania Google Meet

Przed spotkaniem nasz doradca skontaktuje się z Tobą, aby potwierdzić termin konsultacji.

Nie chcesz czekać? Napisz do nas na WhatsApp.

Napisz na WhatsApp
Kalendarz

Umów bezpłatną konsultację.

Europe/Warsaw
Ładowanie...
Dostępne godziny

Wybierz dzień w kalendarzu.